豆豆网

 找回密码
 立即注册

QQ登录

只需一步,快速开始

查看: 1554|回复: 0

4层高级别墅给排水及消防系统CAD施工图纸(市政供水)

[复制链接]

0

主题

0

帖子

776

积分

超级版主

Rank: 8Rank: 8

积分
776
发表于 2020-2-29 22:48:23 | 显示全部楼层 |阅读模式

该帖子包含附件可供参考学习和下载,您可以 搜索 更多您想要的资源


  • 附件设计说明:有
  • 建筑类别:别墅
  • 建筑高度类型:多层建筑
  • 建筑地上层数:4层
  • 建筑地下层数:1层
  • 图纸设计深度:施工图
  • 设计年代:近代
  • 地下室用途:车库
  • 生活供水设计:生活给水系统
  • 排水设计:消防排水
  • 消防设计:室内消火栓系统
  • 供水方式:市政供水

附件详情

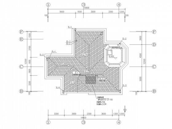
一.项目概要及设计范围
该项目为多层住宅,该项目建筑物层数为地上4层,地下1层。总建筑面积807.51m ,耐火等级为二级;从市政给水管网引进1路DN40进水管,作为该项目水源。
设计范围包括室内给排水设计;室内消防设计;3.总图室外管线。
二.生活给水系统:
1、该项目最高日用水量为2.5m 。
2、供水方式: 由市政直接供水。市政水压0.30MPa。
3、该项目热水系统采用太阳能集热板供热系统。
三.生活排水系统:
1、该项目最高日用水量为2.2m 。建筑内污水经排水系统收集,经室外的污水管,排入化粪池。
2、经化粪池初步处理后,排入经化粪池处理符合《污水排入城镇下水道水质标准》CJ 3082的规定后,排入市政污水管网。场地雨水由景观统一考虑。
四.消火栓与灭火器:
1.该项目为多层住宅,建筑体积小于3000m3;在同一时间内的火灾次数为1次,室外消火栓供水量为15L/S,消防供水时间按2小时计;可不设室内消火栓系统。室外消火栓采用市政消火栓。
2.灭火器配置:按A类火灾中危险级,在建筑内配置MF/ABC3(2A/34B))干粉灭火器。
... ...


地下室给排水平面图

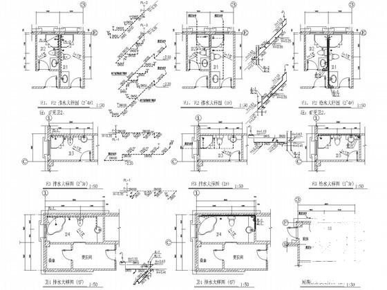
卫生间给排水大样图

屋顶层给排水平面图

市政给排水系统 - 1
第 1 张图
市政给排水系统 - 2
第 2 张图
市政给排水系统 - 3
第 3 张图
市政给排水系统 - 4
第 4 张图
以上是部分图纸截图,有些图框没有放大后再截图,可能截图里不清晰或者看不到内容,您可以在下载后查看具体内容

温馨提示:该资料由网友于2020-2-29 22:48:23上传分享,您可以下载该资料进行学习和参考,如有侵权内容或者违法行为,请及时联系站长删除,如有疑问,您可以在给水排水专区发帖交流相关知识。

附件2099v11edewcce01ec1c2cfec0.rar

413.16 KB

下载  售价: 100 积分    赚积分

市政给排水系统相关帖子

回复

使用道具 举报

您需要登录后才可以回帖 登录 | 立即注册

本版积分规则

QQ|联系我们|豆豆网 ( 苏ICP备20004746号-1 )

GMT+8, 2025-12-30 02:49 , Processed in 0.015398 second(s), 28 queries .

本站所有内容均由网友自主分享,如有侵权内容或者违法行为,请及时联系站长删除,本站将根据实际情况进行积分奖励!请查看:免责声明

快速回复 返回顶部 返回列表