豆豆网

 找回密码
 立即注册

QQ登录

只需一步,快速开始

查看: 1763|回复: 0

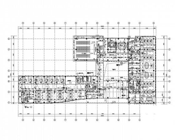
一份5层办公楼给排水CAD施工图纸

[复制链接]

0

主题

0

帖子

1488

积分

超级版主

Rank: 8Rank: 8

积分
1488
发表于 2020-3-1 13:44:22 | 显示全部楼层 |阅读模式

该帖子包含附件可供参考学习和下载,您可以 搜索 更多您想要的资源


  • 建筑设计面积:21814平方米
  • 建筑地上层数:5层
  • 图纸设计深度:施工图
  • 参考图纸:19张
  • 设计年代:近代
  • 生活供水设计:生活给水系统
  • 生产供水设计:热水系统
  • 排水设计:污水系统,废水系统,雨水系统
  • 消防设计:喷淋系统
  • 供水设备:水泵站
  • 供水方式:市政供水,变频供水
  • 雨水重现期:5年
  • 火灾危险等级:中危险级Ⅰ级,中危险级Ⅱ级
  • 消火栓用水量室外(L/S):25
  • 消火栓用水量室内(L/S):15
  • 大样节点:泵房,卫生间,集水坑
  • 项目所在地:上海
  • 附件设计说明:有
  • 建筑类别:办公
  • 建筑高度类型:多层建筑

附件详情

  • 资料目录
  • 给排水设计与施工说明
  • 给排水总平面图
  • 主要设备及材料表
  • 地下室给排水及消火栓平面图
  • 给排水及消火栓平面图
  • 地下室喷淋平面图
  • 给水系统图
  • 集水井详图
  • 排水系统图
  • 雨水收集系统图
  • 雨水回用系统图
  • 消火栓系统图
  • 喷淋系统展示图
  • 水泵房详图系统图
  • 雨水净水机房详图

附件详情

工程介绍:
由地下室相连的三栋2至5层的建筑组成,包括办公、会议、健身、食堂等功能。占地面积13222平方米左右,总建筑面积21814平方米,建筑基底面积为3294 m2。建筑耐火等级为一级,该项目为附建式地下车库,根据上海市民防办的要求战时按甲类防空地下室设计,防护等级为核6 级常6级,二个二等人员掩蔽体,民防总建筑面积为3585.51平方米。

设计内容:
室内外给水排水设计;凡是需要二次装修设计的部位,喷头布置需与其他设备的布置综合考虑协调凡是需要二次装修设计的卫生间仅布置给水排水立管,详图由装饰阶段设计。人防部分由人方院设计。

稿件,共19张图纸。

排水系统图

二层喷淋平面图

水泵房平面图

消火栓泵喷淋泵系统图

雨水回用系统图

雨水净化机房平面及工艺

喷淋系统图

第 1 张图
第 1 张图
第 2 张图
第 2 张图
第 3 张图
第 3 张图
第 4 张图
第 4 张图
第 5 张图
第 5 张图
第 6 张图
第 6 张图
以上是部分图纸截图,有些图框没有放大后再截图,可能截图里不清晰或者看不到内容,您可以在下载后查看具体内容

温馨提示:该资料由网友于2020-3-1 13:44:22上传分享,您可以下载该资料进行学习和参考,如有侵权内容或者违法行为,请及时联系站长删除,如有疑问,您可以在给水排水专区发帖交流相关知识。

附件2099v11edc0fsddew0csceeddc.rar

2.53 MB

下载  售价: 100 积分    赚积分

相关帖子

回复

使用道具 举报

您需要登录后才可以回帖 登录 | 立即注册

本版积分规则

QQ|联系我们|豆豆网 ( 苏ICP备20004746号-1 )

GMT+8, 2025-12-27 16:19 , Processed in 0.018352 second(s), 27 queries .

本站所有内容均由网友自主分享,如有侵权内容或者违法行为,请及时联系站长删除,本站将根据实际情况进行积分奖励!请查看:免责声明

快速回复 返回顶部 返回列表