豆豆网

 找回密码
 立即注册

QQ登录

只需一步,快速开始

查看: 2898|回复: 0

一份4层科研办公楼给排水CAD施工图纸

[复制链接]

0

主题

0

帖子

1829

积分

超级版主

Rank: 8Rank: 8

积分
1829
发表于 2020-2-16 11:15:44 | 显示全部楼层 |阅读模式

该帖子包含附件可供参考学习和下载,您可以 搜索 更多您想要的资源


  • 附件设计说明:有
  • 建筑类别:科研
  • 建筑高度类型:多层建筑
  • 建筑设计结构形式:钢筋混凝土结构
  • 建筑设计面积:9300平方米
  • 建筑地上层数:4层
  • 图纸设计深度:施工图
  • 参考图纸:37张
  • 设计年代:近代
  • 生活供水设计:生活给水系统
  • 生产供水设计:热水系统
  • 排水设计:污水系统,废水系统,雨水系统
  • 消防设计:室外消火栓系统,室内消火栓系统,喷淋系统,气体灭火系统
  • 供水方式:市政供水,变频供水,高位水箱供水
  • 供水分区:无
  • 排水体制:污废分流,雨污分流
  • 排水技术:重力排水
  • 雨水重现期:5年
  • 火灾危险等级:中危险级Ⅰ级
  • 消火栓用水量室外(L/S):20
  • 消火栓用水量室内(L/S):15
  • 大样节点:水箱,泵房,卫生间,集水坑,设备房布置
  • 项目所在地:浙江

附件详情

  • 给排水设计说明及图例
  • 地下一层给排水及消火栓平面图
  • 一层给排水及消火栓平面图
  • 二层给排水及消火栓平面图
  • 三层给排水及消火栓平面图
  • 四层给排水及消火栓平面图
  • 闷顶层给排水及消火栓平面图
  • 屋顶层给排水及消火栓平面图
  • 地下一层自动喷淋平面图
  • 一层自动喷淋平面图
  • 二层自动喷淋平面图
  • 三层自动喷淋平面图
  • 四层自动喷淋平面图
  • 给水排水系统原理图
  • 地下室集水井排水系统图
  • 消火栓给水系统原理图
  • 自动喷淋系统原理图
  • 水泵房给排水放大图一
  • 水泵房给排水放大图二
  • 卫生间给排水大样图一
  • 卫生间给排水大样图二
  • ……

附件详情

项目概要:该项目位于浙江,为多层建筑,是有一栋科研楼和两栋实验用房构成,建筑面积为9300平方米,本建筑4层,建筑高度为19.51m;建筑耐火等级为二级。
设计范围:本建筑设有生活给水系统;生活热水系统;生活污、废水系统;雨水排水系统;消火栓给水系统;自动喷水灭火系统;气体灭火系统。
,共计37张图纸。


地下一层自动喷水平面图

地下一层给排水及消火栓平面图

二层给排水及消火栓平面图

加压给水变频调速泵组

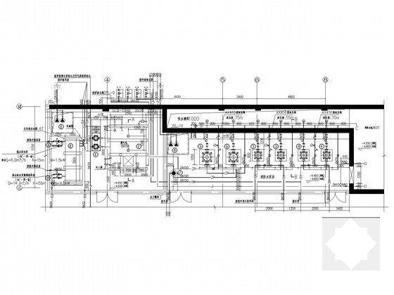
水泵房给排水放大图

给水排水系统原理图

消火栓给水系统原理图

自动喷淋系统原理图

第 1 张图
第 1 张图
第 2 张图
第 2 张图
第 3 张图
第 3 张图
第 4 张图
第 4 张图
第 5 张图
第 5 张图
第 6 张图
第 6 张图
以上是部分图纸截图,有些图框没有放大后再截图,可能截图里不清晰或者看不到内容,您可以在下载后查看具体内容

温馨提示:该资料由网友于2020-2-16 11:15:44上传分享,您可以下载该资料进行学习和参考,如有侵权内容或者违法行为,请及时联系站长删除,如有疑问,您可以在给水排水专区发帖交流相关知识。

附件2099v11edc0d1we0e2wdd2cffe.rar

7.22 MB

下载  售价: 100 积分    赚积分

相关帖子

回复

使用道具 举报

您需要登录后才可以回帖 登录 | 立即注册

本版积分规则

QQ|联系我们|豆豆网 ( 苏ICP备20004746号-1 )

GMT+8, 2025-10-16 11:43 , Processed in 0.018299 second(s), 27 queries .

本站所有内容均由网友自主分享,如有侵权内容或者违法行为,请及时联系站长删除,本站将根据实际情况进行积分奖励!请查看:免责声明

快速回复 返回顶部 返回列表