豆豆网

 找回密码
 立即注册

QQ登录

只需一步,快速开始

查看: 1800|回复: 0

一份5层办公楼给排水CAD施工图纸

[复制链接]

0

主题

0

帖子

1096

积分

超级版主

Rank: 8Rank: 8

积分
1096
发表于 2020-3-1 14:25:06 | 显示全部楼层 |阅读模式

该帖子包含附件可供参考学习和下载,您可以 搜索 更多您想要的资源


  • 附件设计说明:有
  • 建筑类别:办公
  • 建筑高度类型:多层建筑
  • 建筑设计结构形式:钢结构
  • 建筑设计面积:3396.79平方米
  • 建筑地上层数:5层
  • 建筑地下层数:1层
  • 图纸设计深度:施工图
  • 参考图纸:13张
  • 设计年代:近代
  • 生活供水设计:生活给水系统
  • 生产供水设计:热水系统
  • 排水设计:污水系统, 废水系统, 雨水系统
  • 消防设计:室内消火栓系统, 喷淋系统
  • 供水设备:水泵站
  • 供水方式:市政供水
  • 排水体制:污废合流
  • 排水技术:重力排水
  • 雨水重现期:5年
  • 消火栓用水量室外(L/S):20
  • 消火栓用水量室内(L/S):15
  • 大样节点:水泵, 泵房, 厨房
  • 热水供应方式:局部热水供应
  • 项目所在地:天津

附件详情

  • 设计总说明
  • 图 例、采用的标准图
  • 主要材料及设备表
  • 消火栓及给排水平面图
  • 屋面通气管平面图
  • 消火栓及给排水系统图
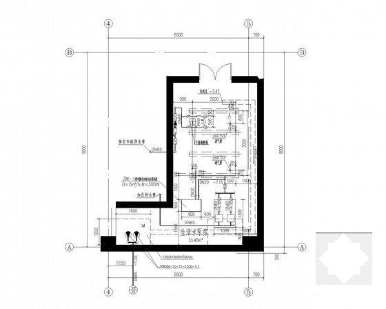
  • 生活水泵房平面、系统图
  • 消防水箱间平面、系统图
  • 卫生间厨房给排水平面、系统图

附件详情

工程介绍:
该项目为多层办公楼。总建筑设计面积:3396.79平米,其中地上建筑面积为:2882.5平米,地下建筑面积为:514.29平米。建筑层数及高度:本建筑为多层公共建筑,地上五层,地下一层。建筑高度至屋顶女儿墙为17.5米, 至电梯顶部高度为17.8米。 设计使用年限:50年;建筑耐火等级:地上二级,地下一级;抗震设防烈度:抗震设防烈度为7度0.15g。

设计内容:
该资料范围包括室内的给水排水、消防等管道系统。本建筑设有生活给水系统、生活热水系统、生活污水系统、消火栓给水系统、雨水系统。

稿件,共13张图纸。

系统图

给水系统图

消防水箱间平面

生活水泵房系统图

第 1 张图
第 1 张图
第 2 张图
第 2 张图
第 3 张图
第 3 张图
第 4 张图
第 4 张图
第 5 张图
第 5 张图
以上是部分图纸截图,有些图框没有放大后再截图,可能截图里不清晰或者看不到内容,您可以在下载后查看具体内容

温馨提示:该资料由网友于2020-3-1 14:25:06上传分享,您可以下载该资料进行学习和参考,如有侵权内容或者违法行为,请及时联系站长删除,如有疑问,您可以在给水排水专区发帖交流相关知识。

附件2099v11edc01ddcfe1eds0ccs2.rar

884.12 KB

下载  售价: 100 积分    赚积分

相关帖子

回复

使用道具 举报

您需要登录后才可以回帖 登录 | 立即注册

本版积分规则

QQ|联系我们|豆豆网 ( 苏ICP备20004746号-1 )

GMT+8, 2025-12-28 21:32 , Processed in 0.016684 second(s), 28 queries .

本站所有内容均由网友自主分享,如有侵权内容或者违法行为,请及时联系站长删除,本站将根据实际情况进行积分奖励!请查看:免责声明

快速回复 返回顶部 返回列表