豆豆网

 找回密码
 立即注册

QQ登录

只需一步,快速开始

查看: 1645|回复: 0

一份48层国际大厦给排水CAD施工图纸

[复制链接]

0

主题

0

帖子

963

积分

超级版主

Rank: 8Rank: 8

积分
963
发表于 2020-3-2 20:16:02 | 显示全部楼层 |阅读模式

该帖子包含附件可供参考学习和下载,您可以 搜索 更多您想要的资源


  • 附件设计说明:有
  • 建筑类别:办公,商业
  • 建筑高度类型:超高层建筑
  • 建筑设计面积:128800平方米
  • 建筑地上层数:48层
  • 建筑地下层数:3层
  • 图纸设计深度:施工图
  • 参考图纸:31张
  • 设计年代:近代
  • 地下室用途:车库,设备用房
  • 生活供水设计:生活给水系统
  • 排水设计:污水系统,废水系统
  • 消防设计:室内消火栓系统,喷淋系统,消防炮系统
  • 供水设备:高位水箱,水泵站
  • 供水方式:市政供水,变频供水,分区供水,高位水箱供水
  • 供水分区:四区以上
  • 排水体制:污废合流,雨污分流
  • 排水技术:重力排水
  • 火灾危险等级:严重危险级Ⅰ级
  • 消火栓用水量室外(L/S):30
  • 消火栓用水量室内(L/S):40
  • 特殊系统:消防炮
  • 大样节点:水箱,水泵,泵房,卫生间,设备房布置
  • 项目所在地:湖北

附件详情

  • 无资料目录

附件详情

资料介绍: 该项目为一座集5A级写字楼、高档商业于一体的超高层综合性建筑,为一类高层综合楼,耐火等级为一级,位于汉口建设大道香港路、澳门路口,周边有较完善的市政条件。地下室共有3层,用作为汽车停车库及设备用房;地上部分1~6层为商业裙房;7~48层为办公楼,其中7、20、34层为避难兼设备层。该项目建筑高度约202m,总建筑面积约为128800m2,地下室车位257个。


设计内容:室内给水、消防和污废水排水系统设计;红线内的室外给水、消防、污废水排水和雨水系统设计;室内雨水由建筑专业设计。

,图纸共31张。

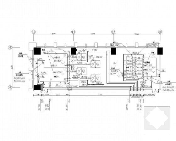
消火栓系统原理图

屋顶水箱间管道布置平面

20层水泵房管道布置平面

二层给排水平面

二十层避难层给排水平面

六层喷淋平面

一层给排水平面

自动喷淋及消防水炮系统原理图

第 1 张图
第 1 张图
第 2 张图
第 2 张图
第 3 张图
第 3 张图
第 4 张图
第 4 张图
第 5 张图
第 5 张图
第 6 张图
第 6 张图
以上是部分图纸截图,有些图框没有放大后再截图,可能截图里不清晰或者看不到内容,您可以在下载后查看具体内容

温馨提示:该资料由网友于2020-3-2 20:16:02上传分享,您可以下载该资料进行学习和参考,如有侵权内容或者违法行为,请及时联系站长删除,如有疑问,您可以在给水排水专区发帖交流相关知识。

附件2099v11edc0fcew02ec2essc01.rar

4.87 MB

下载  售价: 100 积分    赚积分

相关帖子

回复

使用道具 举报

您需要登录后才可以回帖 登录 | 立即注册

本版积分规则

QQ|联系我们|豆豆网 ( 苏ICP备20004746号-1 )

GMT+8, 2025-12-26 23:00 , Processed in 0.016398 second(s), 28 queries .

本站所有内容均由网友自主分享,如有侵权内容或者违法行为,请及时联系站长删除,本站将根据实际情况进行积分奖励!请查看:免责声明

快速回复 返回顶部 返回列表