豆豆网

 找回密码
 立即注册

QQ登录

只需一步,快速开始

查看: 1304|回复: 0

一份6层异形柱框架结构带跃层住宅楼结构CAD施工图纸

[复制链接]

0

主题

0

帖子

1470

积分

超级版主

Rank: 8Rank: 8

积分
1470
发表于 2020-3-3 20:09:07 | 显示全部楼层 |阅读模式

该帖子包含附件可供参考学习和下载,您可以 搜索 更多您想要的资源


  • 建筑类别:住宅
  • 建筑高度类型:多层建筑
  • 建筑地上层数:6层
  • 图纸设计深度:施工图
  • 民用建筑设计使用年限:50年
  • 建筑设计结构形式:钢筋混凝土结构
  • 钢筋混凝土结构:框架
  • 基础形式 :桩基础
  • 结构安全等级:二级
  • 地基基础设计等级:丙级
  • 抗震设防烈度:6度抗震
  • 风压:0.35kN/平方米
  • 参考图纸:20张
  • 设计年代:近代

附件详情

该项目是安徽某拆迁安置房项目,地上六层,异形柱框架结构,带跃层,采用沉管灌注夯扩桩基础,抗震设防烈度为6度,基础设计等级为丙级。
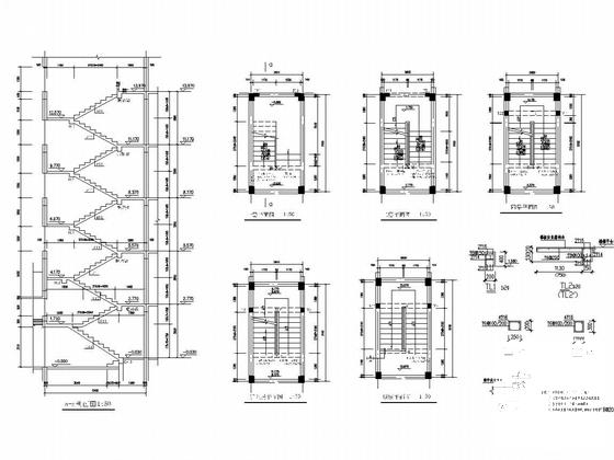
该资料包含: 结构设计说明 ,框架异形柱结构补充说明,沉管灌注夯扩桩结构说明,基础图,逐步直方图,梁平法施工图,板配筋图,楼梯图等共计20张图。
分享投稿时间:近几年9月。

柱布置图

板配筋图

节点详图

楼梯图

板配筋图

第 1 张图
第 1 张图
第 2 张图
第 2 张图
第 3 张图
第 3 张图
第 4 张图
第 4 张图
第 5 张图
第 5 张图
第 6 张图
第 6 张图
以上是部分图纸截图,有些图框没有放大后再截图,可能截图里不清晰或者看不到内容,您可以在下载后查看具体内容

温馨提示:该资料由网友于2020-3-3 20:09:07上传分享,您可以下载该资料进行学习和参考,如有侵权内容或者违法行为,请及时联系站长删除,如有疑问,您可以在居住建筑专区发帖交流相关知识。

附件2099v11edfcedccc2cecfe12cd.rar

1.7 MB

下载  售价: 100 积分    赚积分

相关帖子

回复

使用道具 举报

您需要登录后才可以回帖 登录 | 立即注册

本版积分规则

QQ|联系我们|豆豆网 ( 苏ICP备20004746号-1 )

GMT+8, 2025-12-27 07:33 , Processed in 0.014754 second(s), 27 queries .

本站所有内容均由网友自主分享,如有侵权内容或者违法行为,请及时联系站长删除,本站将根据实际情况进行积分奖励!请查看:免责声明

快速回复 返回顶部 返回列表