豆豆网

 找回密码
 立即注册

QQ登录

只需一步,快速开始

查看: 3367|回复: 0

[CAD]928个车位大型框架结构地下车库结构图纸(建筑图纸)

[复制链接]

0

主题

0

帖子

1736

积分

超级版主

Rank: 8Rank: 8

积分
1736
发表于 2020-3-4 08:19:55 | 显示全部楼层 |阅读模式

该帖子包含附件可供参考学习和下载,您可以 搜索 更多您想要的资源


  • 建筑类别:交通建筑
  • 建筑地下层数:1层
  • 图纸设计深度:施工图
  • 民用建筑设计使用年限:50年
  • 建筑设计结构形式:钢筋混凝土结构
  • 钢筋混凝土结构:框架
  • 基础形式 :筏形基础,其它基础
  • 结构安全等级:二级
  • 地基基础设计等级:丙级
  • 抗震设防烈度:7度抗震
  • 风压:0.40kN/平方米
  • 雪压:0.35kN/平方米
  • 地下室功能:车库
  • 参考图纸:48张
  • 设计年代:近代

附件详情

该项目为甲类防空地下室,设计建筑面积25954平方米(不含坡道敞开段515平方米),防空地下室建筑面积为8072平方米。汽车库停车928辆,为大型车库,车库采用框架结构,7度设防,基础采用柱墩+平板式筏基,基础设计等级为丙级。
结构图纸: 结构设计说明 ,车库抗拔桩 平面布置图 ,车库柱墩平面布置及配筋图,车库筏板配筋图,梁板柱,坡道详图等共计15张。
建筑图纸:建筑设计说明,防火分区及标识标牌示意图,战时设计说明,平面图,剖面图,坡道详图,大样图,楼梯图等共计33张图。
分享投稿时间:近几年12月。

车库基础结构平面布置图

车库柱平面配筋图

车库顶板X向梁配筋图

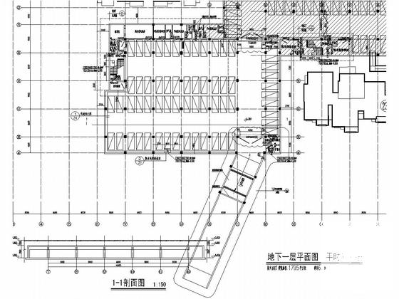
地下一层平面图(平时)

2#汽车坡道详图

楼梯图

地下一层平面图(平时)

车库顶板板面配筋图

地下车库建筑图 - 1
第 1 张图
地下车库建筑图 - 2
第 2 张图
地下车库建筑图 - 3
第 3 张图
地下车库建筑图 - 4
第 4 张图
地下车库建筑图 - 5
第 5 张图
地下车库建筑图 - 6
第 6 张图
地下车库建筑图 - 7
第 7 张图
以上是部分图纸截图,有些图框没有放大后再截图,可能截图里不清晰或者看不到内容,您可以在下载后查看具体内容

温馨提示:该资料由网友于2020-3-4 08:19:55上传分享,您可以下载该资料进行学习和参考,如有侵权内容或者违法行为,请及时联系站长删除,如有疑问,您可以在建筑设计专区发帖交流相关知识。

附件2099v11edfcfce2ccccdcdd2dc.rar

6.63 MB

下载  售价: 100 积分    赚积分

地下车库建筑图相关帖子

回复

使用道具 举报

您需要登录后才可以回帖 登录 | 立即注册

本版积分规则

QQ|联系我们|豆豆网 ( 苏ICP备20004746号-1 )

GMT+8, 2025-12-22 05:47 , Processed in 0.015801 second(s), 27 queries .

本站所有内容均由网友自主分享,如有侵权内容或者违法行为,请及时联系站长删除,本站将根据实际情况进行积分奖励!请查看:免责声明

快速回复 返回顶部 返回列表