豆豆网

 找回密码
 立即注册

QQ登录

只需一步,快速开始

查看: 897|回复: 0

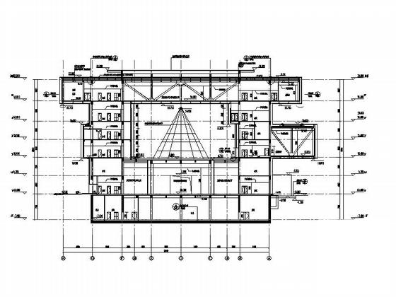
旅游服务中心5层办公楼建筑施工CAD图纸

[复制链接]

0

主题

0

帖子

1390

积分

超级版主

Rank: 8Rank: 8

积分
1390
发表于 2020-1-30 13:43:01 | 显示全部楼层 |阅读模式

该帖子包含附件可供参考学习和下载,您可以 搜索 更多您想要的资源


  • 办公楼类型:行政办公楼
  • 建筑高度类型:多层建筑
  • 建筑设计结构形式:钢筋混凝土结构
  • 钢筋混凝土结构:剪力墙
  • 图纸设计深度:施工图
  • 项目所在地:河南
  • 图纸设计风格:现代风格
  • 图纸设计流派:现代
  • 图纸设计格式:天正建筑CAD 7.0,CAD2000
  • 参考图纸:43张
  • 建筑设计面积:29175平方米
  • 占地面积:33333.3平方米
  • 容积率:0.64平方米
  • 建筑密度:24.5%
  • 建筑高度:36m
  • 地上层数:5层
  • 地下层数:1层
  • 地下室建筑设计面积:7843平方米
  • 地下室功能:车库
  • 设计效果图:无

附件详情

功能:办公楼
该资料包含:建筑施工说明,总平面图,各层平面图,立面图,剖面图,核心筒、楼梯大样图,汽车坡道大样图,卫生间大样图,外墙详图, 节点详图 ,门窗表、门窗立面图。
总开间x进深:153.2x50.8米
地上建筑设计面积:21332平方米 地下建筑设计面积:7843平方米

图5

图6

旅游服务中心 - 1
第 1 张图
旅游服务中心 - 2
第 2 张图
旅游服务中心 - 3
第 3 张图
旅游服务中心 - 4
第 4 张图
旅游服务中心 - 5
第 5 张图
以上是部分图纸截图,有些图框没有放大后再截图,可能截图里不清晰或者看不到内容,您可以在下载后查看具体内容

温馨提示:该资料由网友于2020-1-30 13:43:01上传分享,您可以下载该资料进行学习和参考,如有侵权内容或者违法行为,请及时联系站长删除,如有疑问,您可以在建筑施工专区发帖交流相关知识。

附件2099v11eds0c0f1c2wc202cddc.rar

4.64 MB

下载  售价: 100 积分    赚积分

旅游服务中心相关帖子

回复

使用道具 举报

您需要登录后才可以回帖 登录 | 立即注册

本版积分规则

QQ|联系我们|豆豆网 ( 苏ICP备20004746号-1 )

GMT+8, 2025-12-29 00:11 , Processed in 0.017990 second(s), 27 queries .

本站所有内容均由网友自主分享,如有侵权内容或者违法行为,请及时联系站长删除,本站将根据实际情况进行积分奖励!请查看:免责声明

快速回复 返回顶部 返回列表