豆豆网

 找回密码
 立即注册

QQ登录

只需一步,快速开始

查看: 2344|回复: 0

带人防8层框架结构住宅楼建筑施工CAD图纸

[复制链接]

0

主题

0

帖子

1096

积分

超级版主

Rank: 8Rank: 8

积分
1096
发表于 2020-1-21 22:26:17 | 显示全部楼层 |阅读模式

该帖子包含附件可供参考学习和下载,您可以 搜索 更多您想要的资源


  • 住宅类型(型体):塔式(一梯4户以下)
  • 商业:无
  • 建筑高度:多层建筑
  • 建筑结构形式:钢筋混凝土结构
  • 钢筋混凝土结构:框架
  • 图纸设计深度:施工图
  • 项目地址:甘肃
  • 图纸设计风格:现代风格
  • 图纸设计流派:现代
  • 图纸设计格式:天正建筑CAD 7.0,CAD2000
  • 建筑面积:7241.92平方米
  • 占地面积:748.48平方米
  • 建筑高度:23.2m
  • 地上层数:8层
  • 地下层数:2层
  • 效果图:无

附件详情

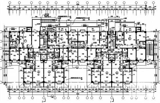
建筑层数、功能及层高:地上八层,地下二层为核六级甲类二等人员掩蔽部,平时为戊类库房,层高4.2米;地下一层为戊类库房,层高为4.5m;地上部分均为住宅,层高2.90m
建筑类别及防火等级:中 高层住宅 ,二级耐火等级;地下室耐火等级一级,防水等级为Ⅱ级。
结构类型及使用年限:框架结构,建筑设计使用年限为50年
屋面防水等级及使用年限:屋面防水等级为Ⅱ级,合理使用年限为15年
建筑物抗震设防烈度:八度;
建筑高度:23.2米
建筑基底面积:748.48平方米
总建筑面积:7241.92平方米

剖面

平面

侧立面图.

总图

第 1 张图
第 1 张图
第 2 张图
第 2 张图
第 3 张图
第 3 张图
第 4 张图
第 4 张图
第 5 张图
第 5 张图
以上是部分图纸截图,有些图框没有放大后再截图,可能截图里不清晰或者看不到内容,您可以在下载后查看具体内容

温馨提示:该资料由网友于2020-1-21 22:26:17上传分享,您可以下载该资料进行学习和参考,如有侵权内容或者违法行为,请及时联系站长删除,如有疑问,您可以在居住建筑专区发帖交流相关知识。

附件2099v11ed1d2cs02dec1ssdc2s.rar

1.11 MB

下载  售价: 100 积分    赚积分

相关帖子

回复

使用道具 举报

您需要登录后才可以回帖 登录 | 立即注册

本版积分规则

QQ|联系我们|豆豆网 ( 苏ICP备20004746号-1 )

GMT+8, 2025-12-24 06:33 , Processed in 0.017142 second(s), 27 queries .

本站所有内容均由网友自主分享,如有侵权内容或者违法行为,请及时联系站长删除,本站将根据实际情况进行积分奖励!请查看:免责声明

快速回复 返回顶部 返回列表