豆豆网

 找回密码
 立即注册

QQ登录

只需一步,快速开始

查看: 2477|回复: 0

一份11层钢筋混凝土短肢剪力墙结构住宅楼建筑施工CAD图纸

[复制链接]

0

主题

0

帖子

1830

积分

超级版主

Rank: 8Rank: 8

积分
1830
发表于 2020-1-21 22:27:53 | 显示全部楼层 |阅读模式

该帖子包含附件可供参考学习和下载,您可以 搜索 更多您想要的资源


  • 建筑高度类型:高层建筑

  • 建筑设计结构形式:钢筋混凝土结构

  • 图纸设计深度:施工图

  • 图纸设计风格:现代风格

  • 图纸设计流派:现代

  • 图纸设计格式:天正建筑CAD 7.0,CAD2000

  • 参考图纸:12张

  • 建筑高度:38.5m

  • 地上层数:11层

  • 设计效果图:无

附件详情

建筑设计结构形式为:钢筋混凝土短肢剪力墙结构
抗震设防烈度:6
层数为: 11层
高度为: 38.5米
屋顶形式:平屋顶
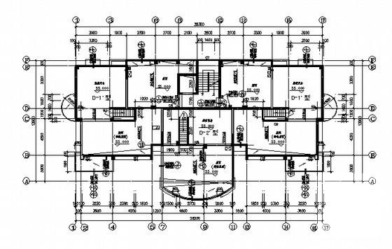
这份参考资料包括资料目录、图纸说明、各层建筑平面、立面、剖面图等,共12张图纸


总图

平面

侧剖立面图

总图

第 1 张图
第 1 张图
第 2 张图
第 2 张图
第 3 张图
第 3 张图
第 4 张图
第 4 张图
第 5 张图
第 5 张图
以上是部分图纸截图,有些图框没有放大后再截图,可能截图里不清晰或者看不到内容,您可以在下载后查看具体内容

温馨提示:该资料由网友于2020-1-21 22:27:53上传分享,您可以下载该资料进行学习和参考,如有侵权内容或者违法行为,请及时联系站长删除,如有疑问,您可以在居住建筑专区发帖交流相关知识。

附件2099v11ed1cde0c0wdfscs22s1.rar

1009.33 KB

下载  售价: 100 积分    赚积分

相关帖子

回复

使用道具 举报

您需要登录后才可以回帖 登录 | 立即注册

本版积分规则

QQ|联系我们|豆豆网 ( 苏ICP备20004746号-1 )

GMT+8, 2025-11-18 16:12 , Processed in 0.021654 second(s), 27 queries .

本站所有内容均由网友自主分享,如有侵权内容或者违法行为,请及时联系站长删除,本站将根据实际情况进行积分奖励!请查看:免责声明

快速回复 返回顶部 返回列表