豆豆网

 找回密码
 立即注册

QQ登录

只需一步,快速开始

查看: 725|回复: 0

一份城市预应力混凝土空心板桥CAD施工图纸设计32张

[复制链接]

0

主题

0

帖子

1154

积分

超级版主

Rank: 8Rank: 8

积分
1154
发表于 2020-4-26 21:22:15 | 显示全部楼层 |阅读模式

该帖子包含附件可供参考学习和下载,您可以 搜索 更多您想要的资源


附件详情

  • 桥梁 设计说明
  • 桥梁工程数量表
  • 桥位平面图
  • 桥型布置图
  • 桥面铺装及横向布置图
  • 空心板中板一般构造图
  • 空心板边板一般构造图
  • 中板钢筋构造图
  • 边板钢筋构造图
  • 中板预应力钢束布置图
  • 边板预应力钢束布置图
  • 桥面连续钢筋构造图
  • 伸缩缝一般构造图
  • 支座一般构造图
  • 人行道块件一般构造图
  • 人行道块件钢筋构造图
  • 栏杆一般构造图
  • 3米绿化带盖板一般构造图
  • 3米绿化带盖板钢筋构造图
  • 4米绿化带盖板一般构造图
  • 4米绿化带盖板钢筋构造图
  • 机动车道桥台一般构造图
  • 机动车道台帽钢筋构造图
  • 非机动车道桥台一般构造图
  • 非机动车道台帽钢筋构造图
  • 桥台搭板一般构造图
  • 机动车道桥台搭板钢筋构造图
  • 非机动车道桥台搭板钢筋构造图
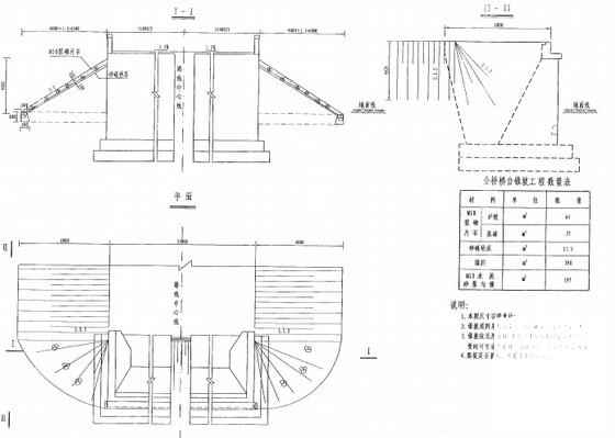
  • 锥坡一般构造图
  • 踏步和上下游护坡一般构造图

附件详情

技术标准:
设计基准期:100年。
设计荷载:城市-A级
桥面宽度:5.5m(人行道)+5m(非机动车道)+4m(绿化带)+11.5m(机动车道)+3m(中央绿化带)+11.5m(机动车道)+4m(绿化带)+5m(非机动车道)+5.5m(人行道),设计桥梁全宽55m。
……
桥型结构:
上部结构:采用一跨22.5米预应力砼 空心板桥 ,桥梁全长32.5米;
下部结构:采用重力式U型桥台扩大基础。
……
共32张。

锥坡一般构造图

第 1 张图
第 1 张图
第 2 张图
第 2 张图
以上是部分图纸截图,有些图框没有放大后再截图,可能截图里不清晰或者看不到内容,您可以在下载后查看具体内容

温馨提示:该资料由网友于2020-4-26 21:22:15上传分享,您可以下载该资料进行学习和参考,如有侵权内容或者违法行为,请及时联系站长删除,如有疑问,您可以在建筑施工专区发帖交流相关知识。

附件2099v11ecwddc2s0es2c001.rar

1.82 MB

下载  售价: 100 积分    赚积分

相关帖子

回复

使用道具 举报

您需要登录后才可以回帖 登录 | 立即注册

本版积分规则

QQ|联系我们|豆豆网 ( 苏ICP备20004746号-1 )

GMT+8, 2025-12-17 18:05 , Processed in 0.017425 second(s), 27 queries .

本站所有内容均由网友自主分享,如有侵权内容或者违法行为,请及时联系站长删除,本站将根据实际情况进行积分奖励!请查看:免责声明

快速回复 返回顶部 返回列表