豆豆网

 找回密码
 立即注册

QQ登录

只需一步,快速开始

查看: 2124|回复: 0

4层单元住宅楼建筑施工CAD图纸(通风架空层没计入层数)

[复制链接]

0

主题

0

帖子

1470

积分

超级版主

Rank: 8Rank: 8

积分
1470
发表于 2020-1-21 22:41:10 | 显示全部楼层 |阅读模式

该帖子包含附件可供参考学习和下载,您可以 搜索 更多您想要的资源


  • 住宅类型(型体):板式
  • 商业:无
  • 建筑高度类型:多层建筑
  • 图纸设计深度:施工图
  • 图纸设计风格:现代风格
  • 图纸设计流派:现代
  • 图纸设计格式:天正建筑CAD 7.0,CAD2000
  • 建筑设计面积:2508.648平方米
  • 建筑高度:13.30m
  • 地上层数:4层
  • 设计效果图:无

附件详情

2.4 建筑层数:地上四层(通风架空层没计入层数);
2.5 建筑等级:二级民用建筑;
2.6 防火设计的建筑耐火等级:二级;
2.7 设计使用年限:50年;
2.8 抗震设防烈度: 8度(0.3g);
2.9 主要结构类型:现浇钢筋混凝土框架;
建筑檐口高度∶13.30m。
建筑面积∶2508.648M
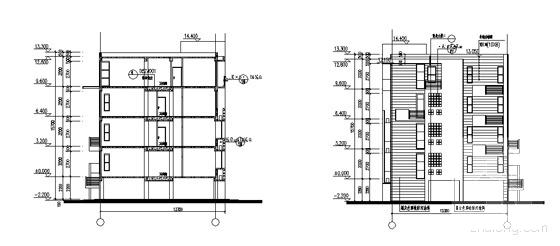
单元住宅施工图包括:平面图、立面图、剖面、设计说明、材料做法、墙身大样、各种节点设计详图。

背立面图

剖立面图

第 1 张图
第 1 张图
第 2 张图
第 2 张图
第 3 张图
第 3 张图
第 4 张图
第 4 张图
第 5 张图
第 5 张图
以上是部分图纸截图,有些图框没有放大后再截图,可能截图里不清晰或者看不到内容,您可以在下载后查看具体内容

温馨提示:该资料由网友于2020-1-21 22:41:10上传分享,您可以下载该资料进行学习和参考,如有侵权内容或者违法行为,请及时联系站长删除,如有疑问,您可以在居住建筑专区发帖交流相关知识。

附件2099v11ed1cww2ewcsdd1fscf1.rar

2.8 MB

下载  售价: 100 积分    赚积分

相关帖子

回复

使用道具 举报

您需要登录后才可以回帖 登录 | 立即注册

本版积分规则

QQ|联系我们|豆豆网 ( 苏ICP备20004746号-1 )

GMT+8, 2025-12-28 18:12 , Processed in 0.016263 second(s), 27 queries .

本站所有内容均由网友自主分享,如有侵权内容或者违法行为,请及时联系站长删除,本站将根据实际情况进行积分奖励!请查看:免责声明

快速回复 返回顶部 返回列表