豆豆网

 找回密码
 立即注册

QQ登录

只需一步,快速开始

查看: 701|回复: 0

一份职业技术学院培训中心-餐饮中心建筑施工CAD图纸

[复制链接]

0

主题

0

帖子

1384

积分

超级版主

Rank: 8Rank: 8

积分
1384
发表于 2020-2-9 10:26:27 | 显示全部楼层 |阅读模式

该帖子包含附件可供参考学习和下载,您可以 搜索 更多您想要的资源


  • 建筑高度类型:多层建筑
  • 建筑设计结构形式:钢筋混凝土结构
  • 钢筋混凝土结构:框架
  • 图纸设计深度:施工图
  • 项目所在地:湖北
  • 图纸设计风格:现代风格
  • 图纸设计流派:现代
  • 图纸设计格式:天正建筑CAD 7.0,CAD2000
  • 建筑高度:9.6m
  • 建筑地上层数:2层
  • 设计效果图:无

附件详情

工程名称:湖北城xxxxx职业技术学院培训中心-餐饮中心
建设地点:湖北城xx职业技术学院
建设单位:湖北城市xx技术学院
使用功能:公共建筑
建筑类别: 三类建筑 ,耐火等级 :二级
防水等级 : 为 II级, 防水层耐用年限: 为15年
抗震设防烈度 : 按六度设防
设计使用年限 :50年
主要结构类型 : 框架结构


剖立面图

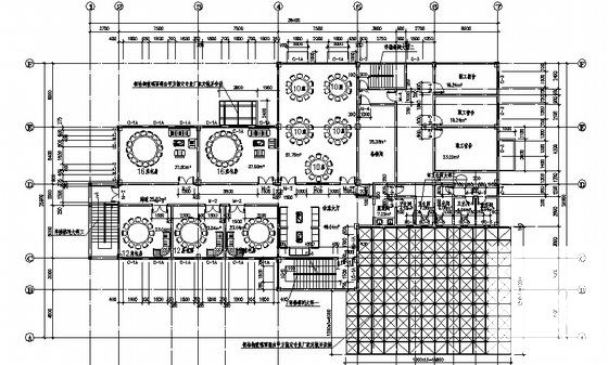
一层平面图

建筑施工培训 - 1
第 1 张图
建筑施工培训 - 2
第 2 张图
建筑施工培训 - 3
第 3 张图
建筑施工培训 - 4
第 4 张图
建筑施工培训 - 5
第 5 张图
以上是部分图纸截图,有些图框没有放大后再截图,可能截图里不清晰或者看不到内容,您可以在下载后查看具体内容

温馨提示:该资料由网友于2020-2-9 10:26:27上传分享,您可以下载该资料进行学习和参考,如有侵权内容或者违法行为,请及时联系站长删除,如有疑问,您可以在建筑施工专区发帖交流相关知识。

附件2099v11edddcwc12wswd1ccdcc.rar

1.23 MB

下载  售价: 100 积分    赚积分

建筑施工培训相关帖子

回复

使用道具 举报

您需要登录后才可以回帖 登录 | 立即注册

本版积分规则

QQ|联系我们|豆豆网 ( 苏ICP备20004746号-1 )

GMT+8, 2025-12-28 21:59 , Processed in 0.015327 second(s), 27 queries .

本站所有内容均由网友自主分享,如有侵权内容或者违法行为,请及时联系站长删除,本站将根据实际情况进行积分奖励!请查看:免责声明

快速回复 返回顶部 返回列表