豆豆网

 找回密码
 立即注册

QQ登录

只需一步,快速开始

查看: 1506|回复: 0

一份26层外语培训中心公寓给排水CAD施工图纸

[复制链接]

0

主题

0

帖子

1391

积分

超级版主

Rank: 8Rank: 8

积分
1391
发表于 2020-3-1 13:43:38 | 显示全部楼层 |阅读模式

该帖子包含附件可供参考学习和下载,您可以 搜索 更多您想要的资源


  • 附件设计说明:有
  • 建筑类别:住宅
  • 建筑高度类型:高层建筑
  • 建筑设计面积:19184.43平方米
  • 建筑地上层数:26层
  • 图纸设计深度:施工图
  • 参考图纸:48张
  • 设计年代:近代
  • 生活供水设计:生活给水系统
  • 消防设计:室内消火栓系统,喷淋系统
  • 供水设备:水泵站,水池
  • 供水方式:市政供水,变频供水,分区供水
  • 供水分区:三区
  • 排水体制:污废分流,雨污分流
  • 排水技术:重力排水
  • 雨水重现期:3年
  • 火灾危险等级:轻危险级
  • 消火栓用水量室外(L/S):15
  • 消火栓用水量室内(L/S):20
  • 特殊系统:太阳能热水系统
  • 大样节点:厨房,卫生间
  • 热水供应方式:集中热水供应,全日供应热水
  • 项目所在地:海南

附件详情

  • 给排水设计总说明
  • 图例及主要器材表
  • 生活及消火栓给水系统原理图
  • 太阳能热水系统原理图
  • 排水系统原理图
  • 给排水平面图
  • 屋顶飘架排水平面图
  • 屋顶太阳能布置平面图
  • 厨卫大样
  • 卫生设备安装

附件详情

工程介绍:
本项目建筑层数和高度:26层/高79.95m,总建筑设计面积:19184.43平方米,结构类型:剪力墙结构,建筑分类:一类,耐火等级:二级,抗震设防烈度:7度,设计使用年限:50年。

设计范围:
该资料范围仅为该建筑的室内给排水管道设计,室外管道另见总图子项设计。
室内设计包括:给水系统,排水系统, 消防系统

本稿件,图纸共48张。

排水系统原理图

太阳能热水系统原理图

屋顶太阳能布置平面图

首层给排水平面图

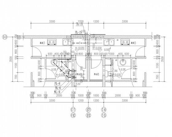
大样图

给排水施工培训 - 1
第 1 张图
给排水施工培训 - 2
第 2 张图
给排水施工培训 - 3
第 3 张图
给排水施工培训 - 4
第 4 张图
给排水施工培训 - 5
第 5 张图
给排水施工培训 - 6
第 6 张图
以上是部分图纸截图,有些图框没有放大后再截图,可能截图里不清晰或者看不到内容,您可以在下载后查看具体内容

温馨提示:该资料由网友于2020-3-1 13:43:38上传分享,您可以下载该资料进行学习和参考,如有侵权内容或者违法行为,请及时联系站长删除,如有疑问,您可以在给水排水专区发帖交流相关知识。

附件2099v11edc0fscecsw20ed2ff1.rar

3 MB

下载  售价: 100 积分    赚积分

给排水施工培训相关帖子

回复

使用道具 举报

您需要登录后才可以回帖 登录 | 立即注册

本版积分规则

QQ|联系我们|豆豆网 ( 苏ICP备20004746号-1 )

GMT+8, 2025-12-31 21:13 , Processed in 0.017447 second(s), 28 queries .

本站所有内容均由网友自主分享,如有侵权内容或者违法行为,请及时联系站长删除,本站将根据实际情况进行积分奖励!请查看:免责声明

快速回复 返回顶部 返回列表