豆豆网

 找回密码
 立即注册

QQ登录

只需一步,快速开始

查看: 690|回复: 0

一份4层医学院解剖教学实验楼建筑施工CAD图纸

[复制链接]

0

主题

0

帖子

1390

积分

超级版主

Rank: 8Rank: 8

积分
1390
发表于 2020-2-9 14:07:09 | 显示全部楼层 |阅读模式

该帖子包含附件可供参考学习和下载,您可以 搜索 更多您想要的资源


  • 建筑高度类型:多层建筑
  • 建筑设计结构形式:钢筋混凝土结构
  • 钢筋混凝土结构:框架
  • 图纸设计深度:施工图
  • 项目所在地:广东
  • 图纸设计风格:现代风格
  • 图纸设计流派:现代
  • 图纸设计格式:天正建筑CAD 7.0,CAD2000
  • 建筑设计面积:8275平方米
  • 占地面积:2451平方米
  • 建筑地上层数:4层
  • 设计效果图:无

附件详情

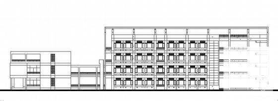
该项目为广东某医学院解剖教学实验楼 建筑施工
教学实验楼(含材料尸体库)基底面积2451(M );
总建筑面积8275(M )
该项目建筑类别二类
耐火等级二级,
抗震设计裂度七度
图纸内容包括建筑材料表、建筑总说明、电梯井、平面铺地、门窗列表、目录、台阶大样、总平面、各平立剖面图等等,


医学院实验楼 - 1
第 1 张图
医学院实验楼 - 2
第 2 张图
医学院实验楼 - 3
第 3 张图
医学院实验楼 - 4
第 4 张图
以上是部分图纸截图,有些图框没有放大后再截图,可能截图里不清晰或者看不到内容,您可以在下载后查看具体内容

温馨提示:该资料由网友于2020-2-9 14:07:09上传分享,您可以下载该资料进行学习和参考,如有侵权内容或者违法行为,请及时联系站长删除,如有疑问,您可以在建筑施工专区发帖交流相关知识。

附件2099v11edd0f1cwdee1cd2120f.rar

6.74 MB

下载  售价: 100 积分    赚积分

医学院实验楼相关帖子

回复

使用道具 举报

您需要登录后才可以回帖 登录 | 立即注册

本版积分规则

QQ|联系我们|豆豆网 ( 苏ICP备20004746号-1 )

GMT+8, 2025-12-29 02:34 , Processed in 0.015974 second(s), 27 queries .

本站所有内容均由网友自主分享,如有侵权内容或者违法行为,请及时联系站长删除,本站将根据实际情况进行积分奖励!请查看:免责声明

快速回复 返回顶部 返回列表