豆豆网

 找回密码
 立即注册

QQ登录

只需一步,快速开始

查看: 576|回复: 0

一份3层框架结构一字型布局幼儿园建筑施工CAD图纸

[复制链接]

0

主题

0

帖子

1383

积分

超级版主

Rank: 8Rank: 8

积分
1383
发表于 2020-2-9 15:07:28 | 显示全部楼层 |阅读模式

该帖子包含附件可供参考学习和下载,您可以 搜索 更多您想要的资源


  • 建筑风格:现代
  • 结构类型:钢筋混凝土结构,框架结构
  • 建筑类别:幼儿园
  • 建筑设计结构形式:钢筋混凝土结构
  • 钢筋混凝土结构:框架
  • 图纸设计深度:施工图
  • 项目所在地:安徽
  • 图纸设计风格:现代风格
  • 图纸设计流派:现代
  • 图纸设计格式:CAD2000
  • 参考图纸:25张
  • 设计年代:近代
  • 建筑设计面积: 2610平方米
  • 占地面积:930平方米
  • 建筑高度:12.65m
  • 建筑地上层数:3层
  • 设计效果图:无

附件详情

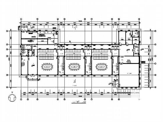
附件设计说明:项目的建筑面积为2610平方米,建筑的基底面积为930平方米,建筑的设计使用年限为50年。该建筑地上三层,建筑高度12.65米,建筑的抗震设防烈度为6度,建筑的主要结构类型为框架结构,建筑布局采用一字型布局。
该资料包含:资料目录、各层平面图、剖面图、立面图、详图、经济指标、设计说明。

三层框架结构一字型布局幼儿园建筑首层平面图

三层框架结构一字型布局幼儿园建筑首层平面图

三层框架结构一字型布局幼儿园建筑立面图

三层框架结构一字型布局幼儿园建筑立面图

三层框架结构一字型布局幼儿园建筑立面图

三层框架结构一字型布局幼儿园建筑平面图

三层框架结构一字型布局幼儿园建筑平面图

三层框架结构一字型布局幼儿园建筑平面图

三层框架结构一字型布局幼儿园建筑详图

三层框架结构一字型布局幼儿园建筑详图

三层框架结构一字型布局幼儿园建筑详图

三层框架结构一字型布局幼儿园建筑详图

三层框架结构一字型布局幼儿园建筑缩略图

框架结构字 - 1
第 1 张图
框架结构字 - 2
第 2 张图
框架结构字 - 3
第 3 张图
框架结构字 - 4
第 4 张图
框架结构字 - 5
第 5 张图
框架结构字 - 6
第 6 张图
框架结构字 - 7
第 7 张图
框架结构字 - 8
第 8 张图
以上是部分图纸截图,有些图框没有放大后再截图,可能截图里不清晰或者看不到内容,您可以在下载后查看具体内容

温馨提示:该资料由网友于2020-2-9 15:07:28上传分享,您可以下载该资料进行学习和参考,如有侵权内容或者违法行为,请及时联系站长删除,如有疑问,您可以在建筑施工专区发帖交流相关知识。

附件2099v11edsc12sfdsdcsd10ccf.zip

1.96 MB

下载  售价: 100 积分    赚积分

框架结构字相关帖子

回复

使用道具 举报

您需要登录后才可以回帖 登录 | 立即注册

本版积分规则

QQ|联系我们|豆豆网 ( 苏ICP备20004746号-1 )

GMT+8, 2025-11-25 04:40 , Processed in 0.020344 second(s), 27 queries .

本站所有内容均由网友自主分享,如有侵权内容或者违法行为,请及时联系站长删除,本站将根据实际情况进行积分奖励!请查看:免责声明

快速回复 返回顶部 返回列表