豆豆网

 找回密码
 立即注册

QQ登录

只需一步,快速开始

查看: 1895|回复: 0

一份25层剪力墙住宅楼结构CAD施工图纸(桩筏基础、两栋)(边缘构件配筋)

[复制链接]

0

主题

0

帖子

1470

积分

超级版主

Rank: 8Rank: 8

积分
1470
发表于 2020-2-9 21:12:08 | 显示全部楼层 |阅读模式

该帖子包含附件可供参考学习和下载,您可以 搜索 更多您想要的资源


  • 建筑类别:商业
  • 建筑高度类型:高层建筑
  • 建筑地上层数:25层
  • 图纸设计深度:施工图
  • 民用建筑设计使用年限:50年
  • 建筑设计结构形式:钢筋混凝土结构
  • 钢筋混凝土结构:剪力墙
  • 基础形式 :筏形基础,桩基础
  • 结构安全等级:二级
  • 抗震设防烈度:7度抗震
  • 风压:0.45kN/平方米
  • 雪压:0.30kN/平方米
  • 参考图纸:72张

附件详情

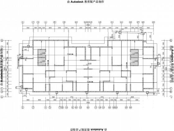
结构设计、施工说明、预应力管桩设计说明、桩基 平面布置图 、基础施工图、剪力墙详细尺寸定位图、边缘构件配筋表、剪力墙布置图、梁配筋图、现浇板配筋图、楼梯配筋图共两栋72张图纸。


基础施工图

桩基平面布置图

剪力墙布置图

梁配筋图

板配筋图

LT节点详图

变墙厚处连梁配筋大样图

基坑配筋图

剪力墙详细尺寸定位图

桩基础配筋 - 1
第 1 张图
桩基础配筋 - 2
第 2 张图
桩基础配筋 - 3
第 3 张图
桩基础配筋 - 4
第 4 张图
桩基础配筋 - 5
第 5 张图
桩基础配筋 - 6
第 6 张图
以上是部分图纸截图,有些图框没有放大后再截图,可能截图里不清晰或者看不到内容,您可以在下载后查看具体内容

温馨提示:该资料由网友于2020-2-9 21:12:08上传分享,您可以下载该资料进行学习和参考,如有侵权内容或者违法行为,请及时联系站长删除,如有疑问,您可以在居住建筑专区发帖交流相关知识。

附件2099v11edfcccew2d20e1002cs.zip

6.37 MB

下载  售价: 100 积分    赚积分

桩基础配筋相关帖子

回复

使用道具 举报

您需要登录后才可以回帖 登录 | 立即注册

本版积分规则

QQ|联系我们|豆豆网 ( 苏ICP备20004746号-1 )

GMT+8, 2025-12-31 21:33 , Processed in 0.034310 second(s), 28 queries .

本站所有内容均由网友自主分享,如有侵权内容或者违法行为,请及时联系站长删除,本站将根据实际情况进行积分奖励!请查看:免责声明

快速回复 返回顶部 返回列表