豆豆网

 找回密码
 立即注册

QQ登录

只需一步,快速开始

查看: 2522|回复: 0

一份16层框架剪力墙住宅楼结构CAD施工图纸

[复制链接]

0

主题

0

帖子

1642

积分

超级版主

Rank: 8Rank: 8

积分
1642
发表于 2020-2-11 14:56:59 | 显示全部楼层 |阅读模式

该帖子包含附件可供参考学习和下载,您可以 搜索 更多您想要的资源


  • 建筑类别:住宅
  • 建筑高度类型:高层建筑
  • 建筑地上层数:16层
  • 图纸设计深度:施工图
  • 民用建筑设计使用年限:50年
  • 建筑设计结构形式:钢筋混凝土结构
  • 钢筋混凝土结构:剪力墙
  • 基础形式 :筏形基础
  • 结构安全等级:二级
  • 风压:0.35kN/平方米
  • 雪压:0.25kN/平方米
  • 参考图纸:29张

附件详情

该资料包含:
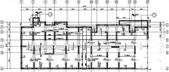
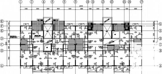
结构总说明、结构总说明附图、基坑开挖及地基处理图、基础结构平面布置图、基础筏板配筋图、地下室墙(柱)结构平面布置图、地下室剪力墙暗柱详图、梁(板)结构平面布置图、板配筋图、梁配筋表、墙(柱)结构平面布置图、大屋面梁(板)结构平面布置图、地下室设备留洞图、 楼梯详图 、出屋面结构 平面布置图 、出屋面剪力墙暗柱详图共29张图纸。


第 1 张图
第 1 张图
第 2 张图
第 2 张图
第 3 张图
第 3 张图
第 4 张图
第 4 张图
以上是部分图纸截图,有些图框没有放大后再截图,可能截图里不清晰或者看不到内容,您可以在下载后查看具体内容

温馨提示:该资料由网友于2020-2-11 14:56:59上传分享,您可以下载该资料进行学习和参考,如有侵权内容或者违法行为,请及时联系站长删除,如有疑问,您可以在居住建筑专区发帖交流相关知识。

附件2099v11edfc20sswcce1c2f0sd.zip

1.84 MB

下载  售价: 100 积分    赚积分

相关帖子

回复

使用道具 举报

您需要登录后才可以回帖 登录 | 立即注册

本版积分规则

QQ|联系我们|豆豆网 ( 苏ICP备20004746号-1 )

GMT+8, 2025-12-28 07:42 , Processed in 0.014646 second(s), 27 queries .

本站所有内容均由网友自主分享,如有侵权内容或者违法行为,请及时联系站长删除,本站将根据实际情况进行积分奖励!请查看:免责声明

快速回复 返回顶部 返回列表