豆豆网

 找回密码
 立即注册

QQ登录

只需一步,快速开始

查看: 2102|回复: 0

[CAD]5层门诊综合楼方案扩出图纸(框架结构)

[复制链接]

0

主题

0

帖子

1384

积分

超级版主

Rank: 8Rank: 8

积分
1384
发表于 2020-2-12 15:56:30 | 显示全部楼层 |阅读模式

该帖子包含附件可供参考学习和下载,您可以 搜索 更多您想要的资源


  • 建筑类别:医院门诊楼
  • 建筑高度类型:多层建筑
  • 建筑设计结构形式:钢筋混凝土结构
  • 钢筋混凝土结构:框架
  • 图纸设计深度 :方案(初设图)
  • 项目所在地:湖南
  • 图纸设计风格:中式风格
  • 图纸设计流派:新中式
  • 图纸设计格式:天正建筑CAD 7.0,CAD2000
  • 参考图纸:9张
  • 建筑设计面积:38391.1平方米
  • 占地面积:9096.2平方米
  • 建筑高度:33m
  • 建筑地上层数:5层
  • 设计效果图:无

附件详情

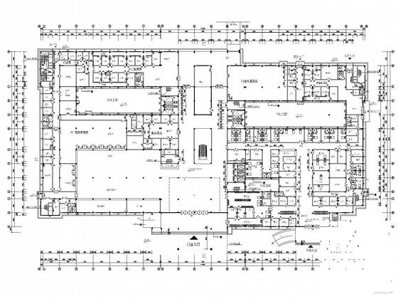
本项目为湘西某门诊综合楼.
建筑设计面积:38391.1平方米。
占地面积:9096.2平方米。
建筑高度:33米。
建筑设计结构形式:框架结构。
这份参考资料包含各层平面图、立面图、剖面图以及门窗表,共计9张图纸。

第 1 张图
第 1 张图
第 2 张图
第 2 张图
第 3 张图
第 3 张图
第 4 张图
第 4 张图
以上是部分图纸截图,有些图框没有放大后再截图,可能截图里不清晰或者看不到内容,您可以在下载后查看具体内容

温馨提示:该资料由网友于2020-2-12 15:56:30上传分享,您可以下载该资料进行学习和参考,如有侵权内容或者违法行为,请及时联系站长删除,如有疑问,您可以在方案设计专区发帖交流相关知识。

附件2099v11edscccwc121e1e11c0s.rar

2.35 MB

下载  售价: 100 积分    赚积分

相关帖子

回复

使用道具 举报

您需要登录后才可以回帖 登录 | 立即注册

本版积分规则

QQ|联系我们|豆豆网 ( 苏ICP备20004746号-1 )

GMT+8, 2025-12-28 00:51 , Processed in 0.015219 second(s), 28 queries .

本站所有内容均由网友自主分享,如有侵权内容或者违法行为,请及时联系站长删除,本站将根据实际情况进行积分奖励!请查看:免责声明

快速回复 返回顶部 返回列表