豆豆网

 找回密码
 立即注册

QQ登录

只需一步,快速开始

查看: 684|回复: 0

一份11层框架结构中医院门急诊综合楼结构CAD施工图纸(钻孔扩底灌注桩)

[复制链接]

0

主题

0

帖子

1350

积分

超级版主

Rank: 8Rank: 8

积分
1350
发表于 2020-2-10 17:05:06 | 显示全部楼层 |阅读模式

该帖子包含附件可供参考学习和下载,您可以 搜索 更多您想要的资源


  • 建筑类别:医疗
  • 建筑高度类型:高层建筑
  • 建筑地上层数:11层
  • 建筑地下层数:1层
  • 图纸设计深度:施工图
  • 民用建筑设计使用年限:50年
  • 建筑设计结构形式:钢筋混凝土结构
  • 钢筋混凝土结构:框架
  • 基础形式 :桩基础
  • 结构安全等级:二级
  • 抗震设防烈度:6度抗震
  • 风压:0.40kN/平方米
  • 雪压:0.35kN/平方米
  • 地下室功能:车库
  • 参考图纸:34张

附件详情

该项目是安徽某11层框架结构中医院门急诊综合楼项目,一层地下室,钻孔扩底灌注桩基础,抗震设防烈度为6度,高层主楼(含地下室)框架抗震等级为二级,地下室防水等级为二级。
包括:结构设计总说明,桩基础及承台结构布置图,桩基说明,承台详图,地下室结构平面布置及配筋图,地下室结构大样图,地上各层结构平面布置及板配筋图,地上各层梁结构平面配筋图,框架柱 平面布置图 ,大门标牌及围墙,平、立、剖面图,水箱基础等共计34张图。

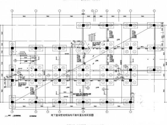
地下室墙壁底板结构平面布置及板配筋图

高层主楼地下室顶板框架柱平面布置图

二层结构平面布置及板配筋图

二层结构平面布置及板配筋图

二层梁结构平面配筋图

二层梁结构平面配筋图

十一层结构平面布置及板配筋图

十一层结构平面布置及板配筋图

围墙

围墙

水箱基础

水箱基础

详图

详图

一层梁结构平面配筋图

扩底钻孔灌注桩 - 1
第 1 张图
扩底钻孔灌注桩 - 2
第 2 张图
扩底钻孔灌注桩 - 3
第 3 张图
扩底钻孔灌注桩 - 4
第 4 张图
扩底钻孔灌注桩 - 5
第 5 张图
扩底钻孔灌注桩 - 6
第 6 张图
以上是部分图纸截图,有些图框没有放大后再截图,可能截图里不清晰或者看不到内容,您可以在下载后查看具体内容

温馨提示:该资料由网友于2020-2-10 17:05:06上传分享,您可以下载该资料进行学习和参考,如有侵权内容或者违法行为,请及时联系站长删除,如有疑问,您可以在建筑施工专区发帖交流相关知识。

附件2099v11edfcc00dcff0c01eec0.rar

6.5 MB

下载  售价: 100 积分    赚积分

扩底钻孔灌注桩相关帖子

回复

使用道具 举报

您需要登录后才可以回帖 登录 | 立即注册

本版积分规则

QQ|联系我们|豆豆网 ( 苏ICP备20004746号-1 )

GMT+8, 2025-11-19 09:10 , Processed in 0.020486 second(s), 27 queries .

本站所有内容均由网友自主分享,如有侵权内容或者违法行为,请及时联系站长删除,本站将根据实际情况进行积分奖励!请查看:免责声明

快速回复 返回顶部 返回列表