豆豆网

 找回密码
 立即注册

QQ登录

只需一步,快速开始

查看: 531|回复: 0

一份18层剪力墙结构公寓楼结构CAD施工图纸

[复制链接]

0

主题

0

帖子

1384

积分

超级版主

Rank: 8Rank: 8

积分
1384
发表于 2020-2-13 15:24:51 | 显示全部楼层 |阅读模式

该帖子包含附件可供参考学习和下载,您可以 搜索 更多您想要的资源


  • 建筑类别:住宅
  • 建筑高度类型:高层建筑
  • 地上层数:18层
  • 地下层数:1层
  • 图纸设计深度:施工图
  • 民用建筑设计使用年限:50年
  • 建筑设计结构形式:钢筋混凝土结构
  • 钢筋混凝土结构:剪力墙
  • 基础形式 :筏形基础
  • 结构安全等级:二级
  • 地基基础设计等级:乙级
  • 抗震设防烈度:7度抗震
  • 风压:0.30kN/平方米
  • 地下室功能:车库
  • 参考图纸:58张
  • 设计年代:近代

附件详情

该项目为18层的剪力墙结构公寓楼,为丙类建筑,剪力墙抗震等级为三级,耐火等级为二级。地基采用筏型基础,7度设防。
该资料包含:结构设计总说明、剪力墙平法施工图、剪力墙构造边缘构件详图、梁平法施工图、结构 平面布置图 、板配筋图、大样详图、平面图、立面图、剖面图等共58张图纸。
出图时间:近代.09。

板配筋图

模板图

2.97m~8.97m剪力墙平法施工图

梁平法施工图(X)

梁平法施工图(Y)

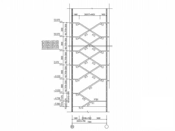
楼梯剖面图

楼梯平法施工图

剪力墙边缘构件、框架柱详图

基础顶~-3.03m剪力墙平法施工图

第 1 张图
第 1 张图
第 2 张图
第 2 张图
第 3 张图
第 3 张图
第 4 张图
第 4 张图
第 5 张图
第 5 张图
第 6 张图
第 6 张图
第 7 张图
第 7 张图
以上是部分图纸截图,有些图框没有放大后再截图,可能截图里不清晰或者看不到内容,您可以在下载后查看具体内容

温馨提示:该资料由网友于2020-2-13 15:24:51上传分享,您可以下载该资料进行学习和参考,如有侵权内容或者违法行为,请及时联系站长删除,如有疑问,您可以在建筑施工专区发帖交流相关知识。

附件2099v11edfcf20ees1wec0csce.rar

7.74 MB

下载  售价: 100 积分    赚积分

相关帖子

回复

使用道具 举报

您需要登录后才可以回帖 登录 | 立即注册

本版积分规则

QQ|联系我们|豆豆网 ( 苏ICP备20004746号-1 )

GMT+8, 2025-12-18 04:37 , Processed in 0.016059 second(s), 28 queries .

本站所有内容均由网友自主分享,如有侵权内容或者违法行为,请及时联系站长删除,本站将根据实际情况进行积分奖励!请查看:免责声明

快速回复 返回顶部 返回列表