豆豆网

 找回密码
 立即注册

QQ登录

只需一步,快速开始

查看: 1154|回复: 0

两坡两跨钢结构厂房设计CAD图纸(dwg)(6度抗震)

[复制链接]

0

主题

0

帖子

1096

积分

超级版主

Rank: 8Rank: 8

积分
1096
发表于 2020-8-17 22:11:31 | 显示全部楼层 |阅读模式

该帖子包含附件可供参考学习和下载,您可以 搜索 更多您想要的资源


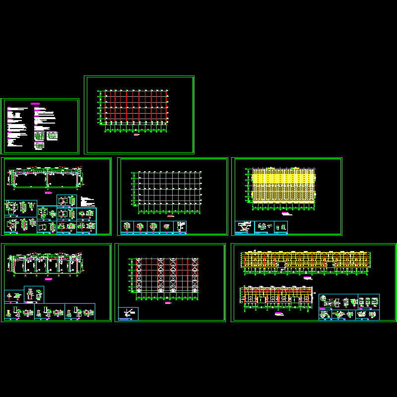
  • 建筑结构形式:门式钢架
  • 抗震烈度:6度抗震
  • 建筑类别:工业建筑
  • 设计使用年限:25年
  • 建筑规模:4743平方米
  • 设计风压:0.45KN/平方米

附件详情

某两坡两跨钢结构厂房设计图
该项目采用两跨两坡门式轻钢结构,跨度51m,柱距7、8、9.4m,檐高9m,建筑面积为4743平方米。
该资料包含:
钢结构设计总说明、柱网布置图、地脚锚栓布置图、屋面檩条布置图、支撑 平面布置图 、墙梁布置图、刚架图共8张图纸。

两坡两跨钢结构厂房设计CAD图纸(dwg)(6度抗震)
第 1 张图
以上是部分图纸截图,有些图框没有放大后再截图,可能截图里不清晰或者看不到内容,您可以在下载后查看具体内容

温馨提示:该资料由网友于2020-8-17 22:11:31上传分享,您可以下载该资料进行学习和参考,如有侵权内容或者违法行为,请及时联系站长删除,如有疑问,您可以在结构设计专区发帖交流相关知识。

附件2099v11edf2fces2dfcdc0cf1d.rar

564.6 KB

下载  售价: 100 积分    赚积分

相关帖子

回复

使用道具 举报

您需要登录后才可以回帖 登录 | 立即注册

本版积分规则

QQ|联系我们|豆豆网 ( 苏ICP备20004746号-1 )

GMT+8, 2025-12-19 06:39 , Processed in 0.015085 second(s), 27 queries .

本站所有内容均由网友自主分享,如有侵权内容或者违法行为,请及时联系站长删除,本站将根据实际情况进行积分奖励!请查看:免责声明

快速回复 返回顶部 返回列表