豆豆网

 找回密码
 立即注册

QQ登录

只需一步,快速开始

查看: 3358|回复: 0

一份24层商住楼给排水CAD施工图纸

[复制链接]

0

主题

0

帖子

1352

积分

超级版主

Rank: 8Rank: 8

积分
1352
发表于 2020-2-16 11:15:52 | 显示全部楼层 |阅读模式

该帖子包含附件可供参考学习和下载,您可以 搜索 更多您想要的资源


  • 附件设计说明:有
  • 建筑类别:住宅,商业
  • 建筑高度类型:高层建筑
  • 建筑设计结构形式:其他结构
  • 建筑设计面积:22740平方米
  • 建筑地上层数:24层
  • 建筑地下层数:1层
  • 图纸设计深度:施工图
  • 参考图纸:17张
  • 地下室用途:车库,设备用房
  • 生活供水设计:生活给水系统
  • 排水设计:污水系统,雨水系统
  • 消防设计:室外消火栓系统,室内消火栓系统
  • 供水设备:高位水箱
  • 供水方式:市政供水,变频供水,分区供水
  • 供水分区:三区
  • 排水体制:污废合流,雨污分流
  • 排水技术:重力排水
  • 火灾危险等级:中危险级Ⅱ级
  • 消火栓用水量室外(L/S):30
  • 消火栓用水量室内(L/S):40
  • 大样节点:水箱,卫生间

附件详情

  • 给排水设计及施工总说明
  • 地下室给排水平面图
  • 地下室喷淋消防平面图
  • 一层给排水平面图
  • 二层给排水平面图
  • 三层给排水平面图
  • 技术层给排水平面图
  • 四~二十三层给排水平面图
  • 二十四层给排水平面图
  • 屋顶层给排水平面图
  • 污水系统图
  • 废水系统图(一)
  • 废水系统图(二)
  • 雨水凝结水系统图
  • 生活给水系统图
  • 生活给水系统图
  • 消火栓给水系统图(二)
  • 地下室~三层自动喷淋 消防系统
  • 四~二十四层自动喷淋消防系统

附件详情

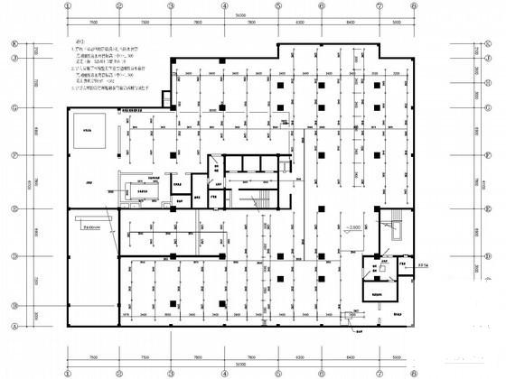
工程建筑面积22740平米,建筑高度为78米,层数为24层,为一类高层居民建筑。其中平时地下一层为机动车库和非机动车库。一层至三层为商业用房、五层以上为住宅。
设计内容:生活给水系统、污废水系统、雨水系统、消防栓系统、自动喷淋灭火系统、水喷雾灭火系统;
共计17张图纸

二十四层给排水平面图

水池剖面图

污水系统图

给水及消火栓系统图

第 1 张图
第 1 张图
第 2 张图
第 2 张图
第 3 张图
第 3 张图
第 4 张图
第 4 张图
第 5 张图
第 5 张图
以上是部分图纸截图,有些图框没有放大后再截图,可能截图里不清晰或者看不到内容,您可以在下载后查看具体内容

温馨提示:该资料由网友于2020-2-16 11:15:52上传分享,您可以下载该资料进行学习和参考,如有侵权内容或者违法行为,请及时联系站长删除,如有疑问,您可以在给水排水专区发帖交流相关知识。

附件2099v11edc0se020cedc0ccedc.rar

1.44 MB

下载  售价: 100 积分    赚积分

相关帖子

回复

使用道具 举报

您需要登录后才可以回帖 登录 | 立即注册

本版积分规则

QQ|联系我们|豆豆网 ( 苏ICP备20004746号-1 )

GMT+8, 2025-12-30 18:00 , Processed in 0.015949 second(s), 28 queries .

本站所有内容均由网友自主分享,如有侵权内容或者违法行为,请及时联系站长删除,本站将根据实际情况进行积分奖励!请查看:免责声明

快速回复 返回顶部 返回列表