豆豆网

 找回密码
 立即注册

QQ登录

只需一步,快速开始

查看: 3429|回复: 0

[CAD]高层住宅楼小区建筑给排水平面施工图纸(气体灭火)

[复制链接]

0

主题

0

帖子

1597

积分

超级版主

Rank: 8Rank: 8

积分
1597
发表于 2020-2-16 11:16:00 | 显示全部楼层 |阅读模式

该帖子包含附件可供参考学习和下载,您可以 搜索 更多您想要的资源


  • 附件设计说明:有
  • 建筑类别:住宅,商业
  • 建筑高度类型:高层建筑
  • 建筑设计结构形式:其他结构
  • 建筑地上层数:28层
  • 建筑地下层数:2层
  • 图纸设计深度:施工图
  • 参考图纸:73张
  • 设计年代:近代
  • 地下室用途:车库,设备用房,其它
  • 生活供水设计:生活给水系统
  • 排水设计:污水系统,废水系统,雨水系统
  • 消防设计:室外消火栓系统,室内消火栓系统,喷淋系统,气体灭火系统
  • 供水设备:高位水箱,水泵站
  • 供水方式:市政供水,变频供水,分区供水,高位水箱供水
  • 供水分区:四区
  • 排水体制:污废合流,雨污分流
  • 排水技术:重力排水
  • 火灾危险等级:中危险级Ⅰ级,中危险级Ⅱ级
  • 消火栓用水量室外(L/S):15
  • 消火栓用水量室内(L/S):20
  • 特殊系统:气体消防
  • 大样节点:泵房,气体灭火,卫生间,集水坑
  • 项目所在地:安徽

附件详情

  • 资料目录
  • 给排水施工图 设计说明
  • 一层给排水平面图
  • 二层给排水平面图
  • 三至二十八层给排水平面图
  • 屋顶给排水平面图
  • 楼梯间屋面给排水平面图
  • 住宅户内给水详图
  • 给排水系统图
  • 负一层给排水平面图
  • 负二层给排水平面图
  • 负一层自喷平面图
  • 负二层自喷平面图
  • 负一层战时给排水平面图
  • 负二层战时给排水平面图
  • 防护单元给排水原理图
  • 固定电站供油原理图
  • 战时集水坑原理图
  • 消防泵房 平面布置图
  • 水泵管道系统图
  • 生活泵房平面布置图
  • 生活加压给水原理图
  • 消火栓原理图
  • 自喷原理图
  • 集水坑原理图
  • 气体灭火平面布置图

附件详情

该项目位于安徽,是一类居民住宅小区项目,共有8栋居民建筑和一栋商业建筑和一个地下车库,其中居民建筑层数为地上二十八层,车库为地下二层,属一类居住建筑。
该项目设计范围:生活给水系统、生活污水系统、屋面雨水系统、室内消火栓系统、空调冷凝水系统及灭火器配置。
,共计73张图纸;

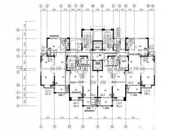
一层给排水平面图

一层自动喷淋平面图

住宅户内给水详图

生活泵房平面布置图

自喷水泵管道系统图

自喷原理图

低区消火栓原理图

给排水系统图

高层小区建筑施工图 - 1
第 1 张图
高层小区建筑施工图 - 2
第 2 张图
高层小区建筑施工图 - 3
第 3 张图
高层小区建筑施工图 - 4
第 4 张图
高层小区建筑施工图 - 5
第 5 张图
高层小区建筑施工图 - 6
第 6 张图
以上是部分图纸截图,有些图框没有放大后再截图,可能截图里不清晰或者看不到内容,您可以在下载后查看具体内容

温馨提示:该资料由网友于2020-2-16 11:16:00上传分享,您可以下载该资料进行学习和参考,如有侵权内容或者违法行为,请及时联系站长删除,如有疑问,您可以在给水排水专区发帖交流相关知识。

附件2099v11edc0s1sefc1dc000sf0.rar

7.72 MB

下载  售价: 100 积分    赚积分

高层小区建筑施工图相关帖子

回复

使用道具 举报

您需要登录后才可以回帖 登录 | 立即注册

本版积分规则

QQ|联系我们|豆豆网 ( 苏ICP备20004746号-1 )

GMT+8, 2025-12-29 02:01 , Processed in 0.019628 second(s), 27 queries .

本站所有内容均由网友自主分享,如有侵权内容或者违法行为,请及时联系站长删除,本站将根据实际情况进行积分奖励!请查看:免责声明

快速回复 返回顶部 返回列表