豆豆网

 找回密码
 立即注册

QQ登录

只需一步,快速开始

查看: 3056|回复: 0

[CAD]8层星级宾馆给排水图纸(湿式自动喷淋蒸汽系统)

[复制链接]

0

主题

0

帖子

1642

积分

超级版主

Rank: 8Rank: 8

积分
1642
发表于 2020-2-16 11:16:11 | 显示全部楼层 |阅读模式

该帖子包含附件可供参考学习和下载,您可以 搜索 更多您想要的资源


  • 附件设计说明:有
  • 建筑类别:办公,商业,宾馆,酒店,餐饮
  • 建筑高度类型:高层建筑
  • 建筑设计结构形式:钢筋混凝土结构
  • 建筑地上层数:8层
  • 建筑地下层数:1层
  • 图纸设计深度:施工图
  • 参考图纸:25张
  • 设计年代:近代
  • 地下室用途:商业,车库,设备用房,其它
  • 生活供水设计:生活给水系统
  • 生产供水设计:热水系统,循环冷却水系统
  • 排水设计:污水系统,废水系统,雨水系统,机房排水,消防排水
  • 消防设计:室内消火栓系统,喷淋系统,湿式灭火系统,灭火器配置系统
  • 供水设备:高位水箱,水泵站,气压水罐,水池,水塔
  • 供水方式:市政供水,变频供水,分区供水,高位水箱供水
  • 供水分区:两区
  • 排水体制:污废合流,雨污分流
  • 排水技术:重力排水
  • 火灾危险等级:中危险级Ⅰ级
  • 消火栓用水量室外(L/S):20
  • 消火栓用水量室内(L/S):20
  • 大样节点:水箱,水泵,泵房,卫生间,洗衣房,集水坑,阀门管件,设备房布置
  • 热水供应方式:集中热水供应

附件详情

  • 资料目录、设备材料表
  • 设计总说明
  • 地下室给水排水平面图
  • 地下室消防给水平面图
  • 给水排水平面图
  • 消防给水平面图
  • 地下室泵房、热交换站基础图
  • 地下室泵房、热交换站设备安装平、剖面图
  • 地下室泵房、热交换站系统图
  • 卫生间给排水大样图、浴室淋浴给水系统图
  • 冷水给水系统图
  • 热水给水系统图、蒸汽系统图
  • 排水系统图
  • 消火栓系统图
  • 自动喷水系统图

附件详情

该项目位于北方,该项目为二类高层建筑(建筑高度为33.80m),有空调系统。地下室为汽车库、空调机房、生活消防泵房、热交换站、配电室;一层为商场;二、三层作洗浴、餐饮用,四~六层为宾馆;七层为会议室,八层为预留设备用房。
设计范围:根据规范及业主委托要求,该资料包括室内给水、排水系统、热水供应系统、蒸汽系统、消防火栓系统、湿式自动喷水系统及灭火器配置设计。
,共25张图。

三层给水排水平面图

地下室泵房、热交换站设备安装平、剖面图

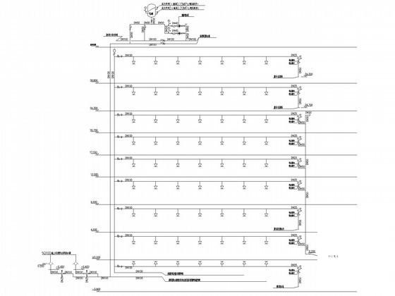
自动喷水系统图

湿式自动喷淋系统 - 1
第 1 张图
湿式自动喷淋系统 - 2
第 2 张图
湿式自动喷淋系统 - 3
第 3 张图
湿式自动喷淋系统 - 4
第 4 张图
以上是部分图纸截图,有些图框没有放大后再截图,可能截图里不清晰或者看不到内容,您可以在下载后查看具体内容

温馨提示:该资料由网友于2020-2-16 11:16:11上传分享,您可以下载该资料进行学习和参考,如有侵权内容或者违法行为,请及时联系站长删除,如有疑问,您可以在给水排水专区发帖交流相关知识。

附件2099v11edc01wcccc2c0s2efse.rar

1.33 MB

下载  售价: 100 积分    赚积分

湿式自动喷淋系统相关帖子

回复

使用道具 举报

您需要登录后才可以回帖 登录 | 立即注册

本版积分规则

QQ|联系我们|豆豆网 ( 苏ICP备20004746号-1 )

GMT+8, 2025-12-29 01:13 , Processed in 0.014856 second(s), 27 queries .

本站所有内容均由网友自主分享,如有侵权内容或者违法行为,请及时联系站长删除,本站将根据实际情况进行积分奖励!请查看:免责声明

快速回复 返回顶部 返回列表