豆豆网

 找回密码
 立即注册

QQ登录

只需一步,快速开始

查看: 2035|回复: 0

一份18层住宅楼小区给排水CAD施工图纸

[复制链接]

0

主题

0

帖子

1084

积分

超级版主

Rank: 8Rank: 8

积分
1084
发表于 2020-2-16 13:19:51 | 显示全部楼层 |阅读模式

该帖子包含附件可供参考学习和下载,您可以 搜索 更多您想要的资源


  • 附件设计说明:有
  • 建筑类别:住宅
  • 建筑高度类型:高层建筑
  • 建筑设计面积:9326.2平方米
  • 建筑地上层数:18层
  • 建筑地下层数:1层
  • 图纸设计深度:施工图
  • 地下室用途:商业
  • 生活供水设计:生活给水系统
  • 排水设计:污水系统,废水系统,雨水系统
  • 消防设计:室外消火栓系统,室内消火栓系统
  • 供水方式:市政供水
  • 排水技术:重力排水
  • 项目所在地:河南

附件详情

  • 设计说明
  • 排水管道系统图
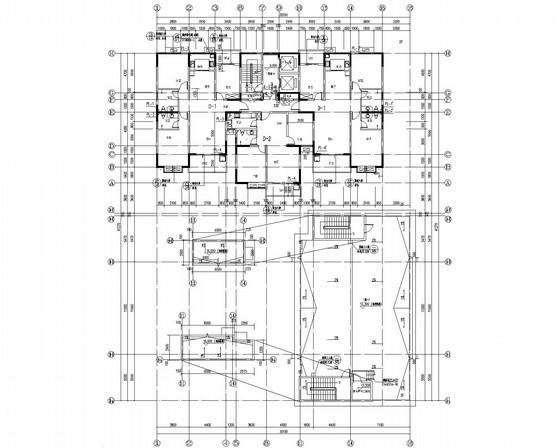
  • 给排水、消防平面图
  • 给水管道系统图
  • 消火栓管道系统图
  • 单元放大图

附件详情

该资料为河南某住宅小区给排水施工图纸。该项目总建筑面积为9326.2平米。一、二层为商铺和住宅,共十八层,建筑高度为55.4米。
设计范围:给水系统、排水系统、室内消防系统、室外 消防系统

排水管道系统图

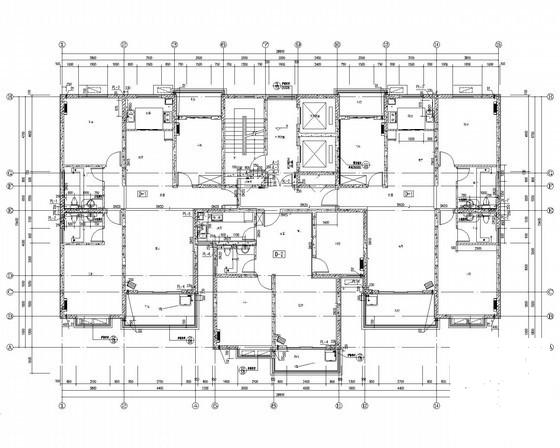
五层给排水、消防平面图

消火栓管道系统图

第 1 张图
第 1 张图
第 2 张图
第 2 张图
第 3 张图
第 3 张图
第 4 张图
第 4 张图
以上是部分图纸截图,有些图框没有放大后再截图,可能截图里不清晰或者看不到内容,您可以在下载后查看具体内容

温馨提示:该资料由网友于2020-2-16 13:19:51上传分享,您可以下载该资料进行学习和参考,如有侵权内容或者违法行为,请及时联系站长删除,如有疑问,您可以在给水排水专区发帖交流相关知识。

附件2099v11edc00wesc0cs2fcc0sd.rar

2.74 MB

下载  售价: 100 积分    赚积分

相关帖子

回复

使用道具 举报

您需要登录后才可以回帖 登录 | 立即注册

本版积分规则

QQ|联系我们|豆豆网 ( 苏ICP备20004746号-1 )

GMT+8, 2025-11-1 14:00 , Processed in 0.016652 second(s), 27 queries .

本站所有内容均由网友自主分享,如有侵权内容或者违法行为,请及时联系站长删除,本站将根据实际情况进行积分奖励!请查看:免责声明

快速回复 返回顶部 返回列表