豆豆网

 找回密码
 立即注册

QQ登录

只需一步,快速开始

查看: 2350|回复: 0

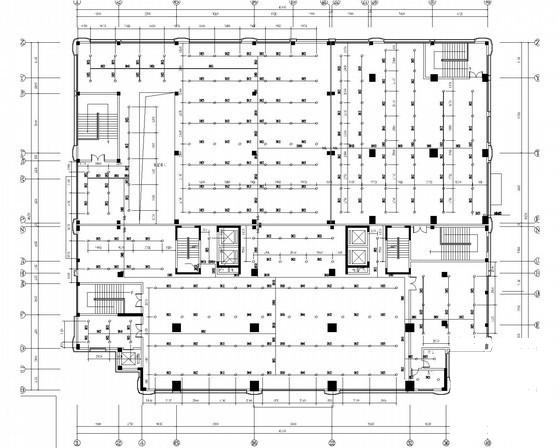
一份17层城乡公租房给排水消防CAD施工图纸

[复制链接]

0

主题

0

帖子

776

积分

超级版主

Rank: 8Rank: 8

积分
776
发表于 2020-2-16 13:20:00 | 显示全部楼层 |阅读模式

该帖子包含附件可供参考学习和下载,您可以 搜索 更多您想要的资源


  • 附件设计说明:有
  • 建筑类别:住宅
  • 建筑高度类型:高层建筑
  • 建筑设计结构形式:钢筋混凝土结构
  • 建筑地上层数:17层
  • 建筑地下层数:1层
  • 图纸设计深度:施工图
  • 参考图纸:26张
  • 设计年代:近代
  • 地下室用途:车库, 设备用房
  • 消防设计:室外消火栓系统, 室内消火栓系统, 喷淋系统
  • 供水方式:分区供水
  • 供水分区:三区
  • 火灾危险等级:轻危险级
  • 消火栓用水量室外(L/S):30
  • 消火栓用水量室内(L/S):40
  • 大样节点:水箱, 泵房
  • 项目所在地:江西

附件详情

  • 给排水设计说明
  • 给排水/消火栓平面图
  • 喷淋平面图
  • 水泵房给排水布置放大图
  • 设备基础及孔洞定位图
  • 生活水箱剖面图
  • 消防水池剖面图
  • 消防水箱大样图
  • 消防水箱剖面图
  • 卫生间给排水布置大样图
  • 给排水支管轴测图
  • 生活给水系统原理图
  • 排水系统原理图
  • 室内消火栓系统原理图
  • 喷淋系统原理图

附件详情

设计范围:建筑 用地红线 范围内的给排水及消防给水设计
共26张

给排消防平面图

排水原理图

卫生间大样

第 1 张图
第 1 张图
第 2 张图
第 2 张图
第 3 张图
第 3 张图
第 4 张图
第 4 张图
以上是部分图纸截图,有些图框没有放大后再截图,可能截图里不清晰或者看不到内容,您可以在下载后查看具体内容

温馨提示:该资料由网友于2020-2-16 13:20:00上传分享,您可以下载该资料进行学习和参考,如有侵权内容或者违法行为,请及时联系站长删除,如有疑问,您可以在给水排水专区发帖交流相关知识。

附件2099v11edc002fccds1esdc2c0.rar

1.6 MB

下载  售价: 100 积分    赚积分

相关帖子

回复

使用道具 举报

您需要登录后才可以回帖 登录 | 立即注册

本版积分规则

QQ|联系我们|豆豆网 ( 苏ICP备20004746号-1 )

GMT+8, 2025-12-21 23:13 , Processed in 0.029119 second(s), 27 queries .

本站所有内容均由网友自主分享,如有侵权内容或者违法行为,请及时联系站长删除,本站将根据实际情况进行积分奖励!请查看:免责声明

快速回复 返回顶部 返回列表