豆豆网

 找回密码
 立即注册

QQ登录

只需一步,快速开始

查看: 3136|回复: 0

一份22层五星级酒店给排水消防CAD施工图纸

[复制链接]

0

主题

0

帖子

1244

积分

超级版主

Rank: 8Rank: 8

积分
1244
发表于 2020-2-16 13:20:05 | 显示全部楼层 |阅读模式

该帖子包含附件可供参考学习和下载,您可以 搜索 更多您想要的资源


  • 附件设计说明:有
  • 建筑类别:酒店
  • 建筑高度类型:高层建筑
  • 建筑设计面积:31850.21平方米
  • 建筑地上层数:22层
  • 建筑地下层数:1层
  • 图纸设计深度:施工图
  • 参考图纸:41张
  • 设计年代:近代
  • 地下室用途:设备用房
  • 生活供水设计:生活给水系统
  • 生产供水设计:热水系统
  • 排水设计:污水系统,雨水系统
  • 消防设计:室内消火栓系统,喷淋系统
  • 供水设备:高位水箱
  • 供水方式:市政供水,变频供水,分区供水,高位水箱供水
  • 供水分区:三区
  • 排水体制:污废合流
  • 排水技术:重力排水
  • 火灾危险等级:中危险级Ⅰ级
  • 消火栓用水量室外(L/S):30
  • 消火栓用水量室内(L/S):40
  • 大样节点:水箱,水泵,泵房,卫生间
  • 项目所在地:新疆

附件详情

  • 无资料目录

附件详情

资料介绍:该项目位于新疆喀什市,为新疆机场集团旅客过夜用房,该项目为一期(包括一栋五星级酒店、一栋三星级酒店和一栋后勤服务用房)该资料为五星级酒店,总建筑面积31850.21平方米,地上22层,地下一层,建筑总高度为90.15m,地下一层为电气、设备用房及一些娱乐用房。一~三层为酒店辅助用房,四层以上为客房。
设计内容:生活给水系统、生活热水系统、生活排水系统、雨水系统、消火栓给水系统、自动喷水灭火系统、气体灭火系统、建筑灭火器配置。


,图纸共41张。


热水系统原理图

地下室给水、热水节点系统图

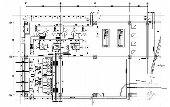
水泵房接管平面图

第 1 张图
第 1 张图
第 2 张图
第 2 张图
第 3 张图
第 3 张图
第 4 张图
第 4 张图
以上是部分图纸截图,有些图框没有放大后再截图,可能截图里不清晰或者看不到内容,您可以在下载后查看具体内容

温馨提示:该资料由网友于2020-2-16 13:20:05上传分享,您可以下载该资料进行学习和参考,如有侵权内容或者违法行为,请及时联系站长删除,如有疑问,您可以在给水排水专区发帖交流相关知识。

附件2099v11edc0020wcwfcf0ccccs.rar

5.57 MB

下载  售价: 100 积分    赚积分

相关帖子

回复

使用道具 举报

您需要登录后才可以回帖 登录 | 立即注册

本版积分规则

QQ|联系我们|豆豆网 ( 苏ICP备20004746号-1 )

GMT+8, 2025-12-16 09:40 , Processed in 0.036072 second(s), 27 queries .

本站所有内容均由网友自主分享,如有侵权内容或者违法行为,请及时联系站长删除,本站将根据实际情况进行积分奖励!请查看:免责声明

快速回复 返回顶部 返回列表