豆豆网

 找回密码
 立即注册

QQ登录

只需一步,快速开始

查看: 2552|回复: 0

一份9层综合楼建筑给排水CAD图纸

[复制链接]

0

主题

0

帖子

1111

积分

超级版主

Rank: 8Rank: 8

积分
1111
发表于 2020-2-16 13:20:16 | 显示全部楼层 |阅读模式

该帖子包含附件可供参考学习和下载,您可以 搜索 更多您想要的资源


  • 附件设计说明:无
  • 建筑类别:办公
  • 建筑设计结构形式:钢筋混凝土结构
  • 建筑地上层数:9层
  • 建筑地下层数:1层
  • 图纸设计深度:施工图
  • 参考图纸:14张
  • 地下室用途:车库
  • 生活供水设计:生活给水系统
  • 排水设计:污水系统,废水系统,雨水系统
  • 供水设备:高位水箱
  • 供水方式:市政供水,分区供水
  • 供水分区:两区
  • 排水体制:污废合流,雨污分流
  • 排水技术:重力排水
  • 大样节点:水泵,泵房,厨房,卫生间

附件详情

  • 地下室给排水平面图
  • 一层给排水平面图
  • 二层给排水平面图
  • 三层给排水平面图
  • 四至八层给排水平面图
  • 九层给排水平面图
  • 屋顶层给排水平面图
  • 厨卫大样图
  • 地下水池、水泵房平面图
  • 屋顶水箱详图
  • 屋顶热水机组设备间详图
  • 冷水系统图
  • 热水系统图
  • 消火栓系统图
  • 排水系统图
  • 雨水系统图

附件详情

项目概要:该项目是一九层综合楼给排水项目,建筑层数为地上9层,地下一层;建筑高度为24米;
设计范围:该项目设有生活给水系统、生活污水系统、生活废水系统、消火栓给水系统、雨水系统等。
共计14张图纸;

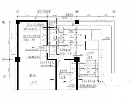
水泵房平面

热水系统图

排水系统图

第 1 张图
第 1 张图
第 2 张图
第 2 张图
第 3 张图
第 3 张图
第 4 张图
第 4 张图
以上是部分图纸截图,有些图框没有放大后再截图,可能截图里不清晰或者看不到内容,您可以在下载后查看具体内容

温馨提示:该资料由网友于2020-2-16 13:20:16上传分享,您可以下载该资料进行学习和参考,如有侵权内容或者违法行为,请及时联系站长删除,如有疑问,您可以在给水排水专区发帖交流相关知识。

附件2099v11edc00fwswef1ccd2c2e.rar

727.8 KB

下载  售价: 100 积分    赚积分

相关帖子

回复

使用道具 举报

您需要登录后才可以回帖 登录 | 立即注册

本版积分规则

QQ|联系我们|豆豆网 ( 苏ICP备20004746号-1 )

GMT+8, 2025-12-22 05:42 , Processed in 0.015147 second(s), 27 queries .

本站所有内容均由网友自主分享,如有侵权内容或者违法行为,请及时联系站长删除,本站将根据实际情况进行积分奖励!请查看:免责声明

快速回复 返回顶部 返回列表