豆豆网

 找回密码
 立即注册

QQ登录

只需一步,快速开始

查看: 2464|回复: 0

一份41层超高层综合大厦给排水消防CAD施工图纸(泵房管道系统图)

[复制链接]

0

主题

0

帖子

1470

积分

超级版主

Rank: 8Rank: 8

积分
1470
发表于 2020-2-16 13:22:20 | 显示全部楼层 |阅读模式

该帖子包含附件可供参考学习和下载,您可以 搜索 更多您想要的资源


  • 附件设计说明:有
  • 建筑类别:住宅,办公
  • 建筑高度类型:超高层建筑
  • 建筑设计结构形式:钢筋混凝土结构
  • 建筑地上层数:41层
  • 建筑地下层数:4层
  • 图纸设计深度:施工图
  • 参考图纸:80张
  • 设计年代:近代
  • 生活供水设计:生活给水系统
  • 生产供水设计:热水系统
  • 排水设计:污水系统,雨水系统
  • 消防设计:气体灭火系统,泡沫灭火系统
  • 供水方式:市政供水,分区供水
  • 供水分区:三区
  • 特殊系统:气体消防
  • 大样节点:泵房,卫生间
  • 项目所在地:广东

附件详情

  • 给排水设计说明
  • 给排水平面图
  • 给排水系统图
  • 给排水及消火栓平面图
  • 自动喷水平面图
  • 热水平面图
  • 消火栓平面图
  • 泵房设备、管道布置平面详图
  • 泵房管道系统图
  • 洗衣房设备布置平详图
  • 污水系统图
  • 雨水系统图
  • 消火栓系统图
  • 卫生间给排水详图

附件详情

设计范围:包括建筑红线内的室内外给水系统、室内外无水排水系统、室内外雨水系统、室内外消防给水系统。
,共80张。


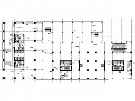
泵房管道布置图

给排水平面图

喷淋水泵系统图

泵房给排水系统 - 1
第 1 张图
泵房给排水系统 - 2
第 2 张图
泵房给排水系统 - 3
第 3 张图
泵房给排水系统 - 4
第 4 张图
以上是部分图纸截图,有些图框没有放大后再截图,可能截图里不清晰或者看不到内容,您可以在下载后查看具体内容

温馨提示:该资料由网友于2020-2-16 13:22:20上传分享,您可以下载该资料进行学习和参考,如有侵权内容或者违法行为,请及时联系站长删除,如有疑问,您可以在给水排水专区发帖交流相关知识。

附件2099v11edewwewsw0w1s0cfdcc.rar

9.03 MB

下载  售价: 100 积分    赚积分

泵房给排水系统相关帖子

回复

使用道具 举报

您需要登录后才可以回帖 登录 | 立即注册

本版积分规则

QQ|联系我们|豆豆网 ( 苏ICP备20004746号-1 )

GMT+8, 2025-12-21 01:31 , Processed in 0.017887 second(s), 27 queries .

本站所有内容均由网友自主分享,如有侵权内容或者违法行为,请及时联系站长删除,本站将根据实际情况进行积分奖励!请查看:免责声明

快速回复 返回顶部 返回列表