豆豆网

 找回密码
 立即注册

QQ登录

只需一步,快速开始

查看: 3290|回复: 0

一份多层住宅楼给排水及消防CAD施工图纸(热水系统)

[复制链接]

0

主题

0

帖子

1390

积分

超级版主

Rank: 8Rank: 8

积分
1390
发表于 2020-2-16 15:20:51 | 显示全部楼层 |阅读模式

该帖子包含附件可供参考学习和下载,您可以 搜索 更多您想要的资源


  • 附件设计说明:有

附件详情

  • 设计及施工说明
  • 给排水平面图
  • 给排水消防平面图
  • 太阳能管道布置平面图
  • 户型给排水详图
  • 太阳能接管示意图
  • 给排水系统图
  • 给水热水立管图
  • 户型给水,热水系统图

附件详情

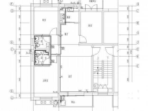
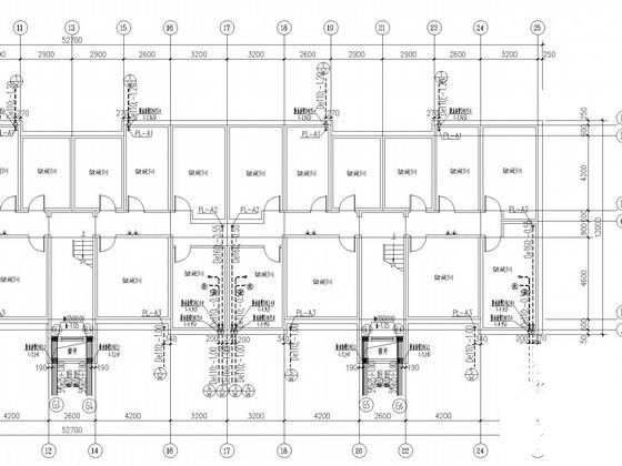
一、项目概要:
该项目为六层住宅,一层为车库和储藏室。储藏室仅允许存放和使用火灾危险性为丁、戊类的物品。
二、设计范围:
建筑单体以内的生活给水系统、生活排水系统、建筑灭火器配置的设计。
,共9张。

给水热水立管系统图

户型给排水大样图

太阳能管道布置图

多层住宅消防 - 1
第 1 张图
多层住宅消防 - 2
第 2 张图
多层住宅消防 - 3
第 3 张图
多层住宅消防 - 4
第 4 张图
以上是部分图纸截图,有些图框没有放大后再截图,可能截图里不清晰或者看不到内容,您可以在下载后查看具体内容

温馨提示:该资料由网友于2020-2-16 15:20:51上传分享,您可以下载该资料进行学习和参考,如有侵权内容或者违法行为,请及时联系站长删除,如有疑问,您可以在给水排水专区发帖交流相关知识。

附件2099v11edew2f1s1csw1ffdcdd.rar

663.75 KB

下载  售价: 100 积分    赚积分

多层住宅消防相关帖子

回复

使用道具 举报

您需要登录后才可以回帖 登录 | 立即注册

本版积分规则

QQ|联系我们|豆豆网 ( 苏ICP备20004746号-1 )

GMT+8, 2025-12-28 04:51 , Processed in 0.014924 second(s), 27 queries .

本站所有内容均由网友自主分享,如有侵权内容或者违法行为,请及时联系站长删除,本站将根据实际情况进行积分奖励!请查看:免责声明

快速回复 返回顶部 返回列表