豆豆网

 找回密码
 立即注册

QQ登录

只需一步,快速开始

查看: 2211|回复: 0

一份150米五星级酒店给排水消防CAD施工图纸

[复制链接]

0

主题

0

帖子

1321

积分

超级版主

Rank: 8Rank: 8

积分
1321
发表于 2020-2-16 15:21:15 | 显示全部楼层 |阅读模式

该帖子包含附件可供参考学习和下载,您可以 搜索 更多您想要的资源


  • 附件设计说明:有
  • 建筑类别:酒店
  • 建筑高度类型:超高层建筑
  • 建筑设计结构形式:钢筋混凝土结构
  • 图纸设计深度:施工图
  • 参考图纸:61张
  • 设计年代:近代
  • 生活供水设计:生活给水系统
  • 排水设计:污水系统,雨水系统
  • 消防设计:室外消火栓系统,室内消火栓系统
  • 供水分区:四区以上
  • 排水体制:污废合流
  • 消火栓用水量室外(L/S):30
  • 消火栓用水量室内(L/S):40
  • 特殊系统:游泳池
  • 大样节点:卫生间
  • 项目所在地:贵州

附件详情

  • 给排水设计说明
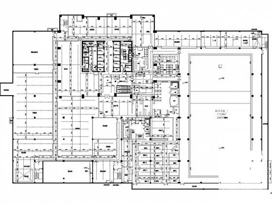
  • 给排水消防平面图
  • 喷淋平面图
  • 生活给水系统原理图
  • 热水系统原理图
  • 湿式自动喷淋系统原理图
  • 污水系统原理图
  • 雨水系统原理图
  • 消防水池、泵房大样图
  • 卫生间给排水大样图
  • 游泳池管道布置图

附件详情

该项目为五星级酒店,总建筑面积约8万平方米,建筑高度150米。
该项目红线以内室外和室内给水排水及 消防系统 由本院设计。
,共61张。

泵房布置图

给水系统图

污水系统原理图

消火栓给水系统图

喷淋平面图

第 1 张图
第 1 张图
第 2 张图
第 2 张图
第 3 张图
第 3 张图
第 4 张图
第 4 张图
第 5 张图
第 5 张图
第 6 张图
第 6 张图
以上是部分图纸截图,有些图框没有放大后再截图,可能截图里不清晰或者看不到内容,您可以在下载后查看具体内容

温馨提示:该资料由网友于2020-2-16 15:21:15上传分享,您可以下载该资料进行学习和参考,如有侵权内容或者违法行为,请及时联系站长删除,如有疑问,您可以在给水排水专区发帖交流相关知识。

附件2099v11edew21ffcc0d1cccfc2.rar

7.27 MB

下载  售价: 100 积分    赚积分

相关帖子

回复

使用道具 举报

您需要登录后才可以回帖 登录 | 立即注册

本版积分规则

QQ|联系我们|豆豆网 ( 苏ICP备20004746号-1 )

GMT+8, 2025-12-16 02:40 , Processed in 0.014458 second(s), 27 queries .

本站所有内容均由网友自主分享,如有侵权内容或者违法行为,请及时联系站长删除,本站将根据实际情况进行积分奖励!请查看:免责声明

快速回复 返回顶部 返回列表