豆豆网

 找回密码
 立即注册

QQ登录

只需一步,快速开始

查看: 4296|回复: 0

办公楼给排水及消防CAD施工图纸设计(自动喷淋灭火系统)

[复制链接]

0

主题

0

帖子

1516

积分

超级版主

Rank: 8Rank: 8

积分
1516
发表于 2020-2-16 15:21:36 | 显示全部楼层 |阅读模式

该帖子包含附件可供参考学习和下载,您可以 搜索 更多您想要的资源


  • 附件设计说明:有
  • 建筑类别:办公
  • 建筑高度类型:多层建筑
  • 图纸设计深度:施工图
  • 设计年代:近代
  • 项目所在地:陕西

附件详情

一、项目概要:

该项目是多层公共建筑给排水设计,建筑共3层,无地下室。图纸内容包含设计施工说明,主要设备材料表及图例,给水平面图、排水平面图、给排水系统图、 消防系统 图等

二、给水系统:
1.生活给水:该项目设计分质供水,卫生间供水采用中水系统,不分区。
2.生活给水系统为一个区,采用市政给水和自备加压相结合,当市政压力能满足要求时由市政给水管网直接供给,当市政供水压力不能满足要求时由自备的变频调速加压设备供给。
3.办公用独立卫生间设置集中热水供应系,换热器设在主楼地下室换热站内。热媒由市政蒸汽管网供给。
三、排水系统:
1. 厨房排水先经隔油器处理,再排至室外污水管网。该项目的污水在室外收集进入中水处理设备,经处理后供给各用水点。

四、消防系统:
1.主楼地下室设消防泵房和消防水池,室内消火栓水量、水压由室内消火栓泵从消防水池吸水加压后供给.消火栓给水不分区,所有消火栓均采用减压稳压型消火栓。
2.本建筑火灾危险性为中危一级,自动喷淋灭火系统系统采用临时高压制。

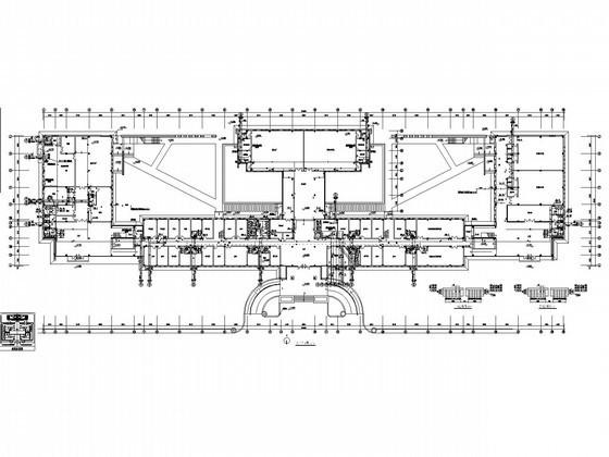
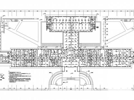
凝结水管道透视图

首层自喷平面图

卫生间放大平面及支管透视图

办公楼自动喷淋 - 1
第 1 张图
办公楼自动喷淋 - 2
第 2 张图
办公楼自动喷淋 - 3
第 3 张图
办公楼自动喷淋 - 4
第 4 张图
以上是部分图纸截图,有些图框没有放大后再截图,可能截图里不清晰或者看不到内容,您可以在下载后查看具体内容

温馨提示:该资料由网友于2020-2-16 15:21:36上传分享,您可以下载该资料进行学习和参考,如有侵权内容或者违法行为,请及时联系站长删除,如有疑问,您可以在给水排水专区发帖交流相关知识。

附件2099v11edewccwwwf12e111010.rar

3.24 MB

下载  售价: 100 积分    赚积分

办公楼自动喷淋相关帖子

回复

使用道具 举报

您需要登录后才可以回帖 登录 | 立即注册

本版积分规则

QQ|联系我们|豆豆网 ( 苏ICP备20004746号-1 )

GMT+8, 2025-12-27 19:17 , Processed in 0.260646 second(s), 28 queries .

本站所有内容均由网友自主分享,如有侵权内容或者违法行为,请及时联系站长删除,本站将根据实际情况进行积分奖励!请查看:免责声明

快速回复 返回顶部 返回列表