豆豆网

 找回密码
 立即注册

QQ登录

只需一步,快速开始

查看: 1366|回复: 0

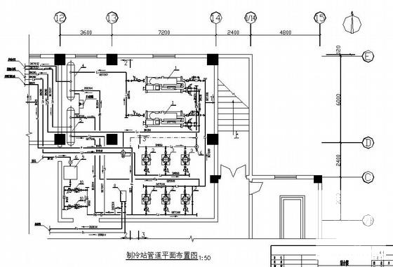
综合楼制冷站布置CAD图纸(螺杆式冷水机)(dwg)

[复制链接]

0

主题

0

帖子

1476

积分

超级版主

Rank: 8Rank: 8

积分
1476
发表于 2020-9-19 13:11:41 | 显示全部楼层 |阅读模式

该帖子包含附件可供参考学习和下载,您可以 搜索 更多您想要的资源


  • 附件设计说明:有
  • 图纸设计深度:施工图
  • 参考图纸:7张
  • 设计内容:其它
  • 冷热源:电动压缩式冷水机组
  • 项目所在地:山西

附件详情

制冷站设在地下一层,内设两台SLAA060AS型螺杆式冷水机,冷冻站选三台冷冻水循环泵,两用一备,并联运行。冬季用热水采用一台换热器提供,型号为BRB0.35-1.0-30提供热水温度为60/50°C。

螺杆式冷水机 - 1
第 1 张图
螺杆式冷水机 - 2
第 2 张图
螺杆式冷水机 - 3
第 3 张图
螺杆式冷水机 - 4
第 4 张图
以上是部分图纸截图,有些图框没有放大后再截图,可能截图里不清晰或者看不到内容,您可以在下载后查看具体内容

温馨提示:该资料由网友于2020-9-19 13:11:41上传分享,您可以下载该资料进行学习和参考,如有侵权内容或者违法行为,请及时联系站长删除,如有疑问,您可以在给水排水专区发帖交流相关知识。

附件2099v11ecwds21wecesc212.rar

408.62 KB

下载  售价: 100 积分    赚积分

螺杆式冷水机相关帖子

回复

使用道具 举报

您需要登录后才可以回帖 登录 | 立即注册

本版积分规则

QQ|联系我们|豆豆网 ( 苏ICP备20004746号-1 )

GMT+8, 2025-12-29 05:33 , Processed in 0.015153 second(s), 27 queries .

本站所有内容均由网友自主分享,如有侵权内容或者违法行为,请及时联系站长删除,本站将根据实际情况进行积分奖励!请查看:免责声明

快速回复 返回顶部 返回列表