豆豆网

 找回密码
 立即注册

QQ登录

只需一步,快速开始

查看: 729|回复: 0

一份风雨操场屋顶网架结构CAD施工图纸

[复制链接]

0

主题

0

帖子

1389

积分

超级版主

Rank: 8Rank: 8

积分
1389
发表于 2020-2-16 22:44:41 | 显示全部楼层 |阅读模式

该帖子包含附件可供参考学习和下载,您可以 搜索 更多您想要的资源


  • 建筑类别:教育
  • 建筑高度类型:单层建筑
  • 建筑地上层数:1层
  • 图纸设计深度:施工图
  • 民用建筑设计使用年限:50年
  • 建筑设计结构形式:钢结构
  • 钢结构:网架
  • 基础形式 :独立基础
  • 结构安全等级:二级
  • 地基基础设计等级:丙级
  • 抗震设防烈度:7度抗震
  • 风压:0.35kN/平方米
  • 雪压:0.40kN/平方米
  • 参考图纸:11张
  • 设计年代:近代

附件详情

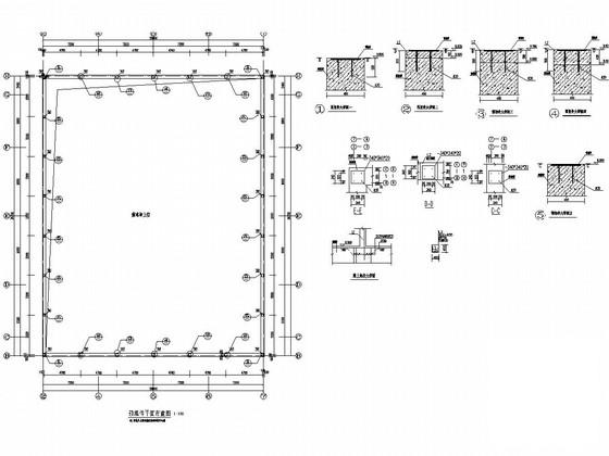
该项目是风雨操场屋顶网架工程,建筑设计面积:1057平方米;建筑设计结构形式:正放四角锥螺栓球节点网架,地震设防烈度7度(0.15g),第一组,抗震等级为四级。
该资料包含:网架设计说明,预埋件平面布置图,网架平面图,上、下弦、腹杆杆件布置图,螺栓球大样图,屋面网架 平面布置图 ,屋顶排水图等共计11张图。
分享投稿时间:近几年

网架平面图

球节点详图

屋面网架布置图

第 1 张图
第 1 张图
第 2 张图
第 2 张图
第 3 张图
第 3 张图
第 4 张图
第 4 张图
以上是部分图纸截图,有些图框没有放大后再截图,可能截图里不清晰或者看不到内容,您可以在下载后查看具体内容

温馨提示:该资料由网友于2020-2-16 22:44:41上传分享,您可以下载该资料进行学习和参考,如有侵权内容或者违法行为,请及时联系站长删除,如有疑问,您可以在建筑施工专区发帖交流相关知识。

附件2099v11edfcwc1s2ffcfc1d22f.rar

1.54 MB

下载  售价: 100 积分    赚积分

相关帖子

回复

使用道具 举报

您需要登录后才可以回帖 登录 | 立即注册

本版积分规则

QQ|联系我们|豆豆网 ( 苏ICP备20004746号-1 )

GMT+8, 2025-12-16 06:51 , Processed in 0.096764 second(s), 27 queries .

本站所有内容均由网友自主分享,如有侵权内容或者违法行为,请及时联系站长删除,本站将根据实际情况进行积分奖励!请查看:免责声明

快速回复 返回顶部 返回列表