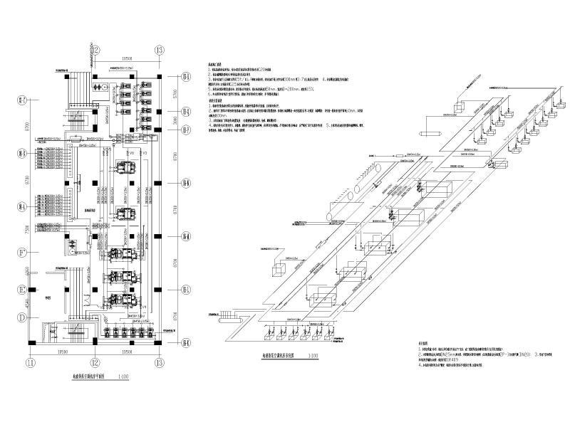
地源热泵空调系统热泵站房与换热系统设计CAD施工大样图
- 发布时间:2021-05-12
- 评论次数:0
- 浏览次数:0
- 文件大小:9.85 MB
- 收藏次数:0
-
文件名称:
附件-996995869705585997.dwg
地源热泵空调系统下载
- 空调土壤源热泵换热系统资料16P.pdf
- 空调工程土壤源热泵换热系统16P.pdf
- 空调工程水源热泵换热系统18P.pdf
- 锅炉房换热间施工CAD图纸(热力系统图)(dwg)
- 锅炉系统对流受热面换热计算PPT讲稿
- 地源热泵系统原理图(闭式、热回收式)
- 换热面积计算.xls
- [CAD]全热回收水源热泵中央空调及热水系统图纸.dwg
- 深井水源热泵机房设计,经过梯级换热供小区_CAD
- 换热站基础采暖供暖系统设计CAD施工图纸(全面换热).dwg
- 带热回收地源热泵机房设计CAD施工图纸,共4张.dwg
- [CAD]商场水源热空调系统会套图纸.dwg
- 3层别墅地源热泵空调系统设计CAD施工大样图(dwg)
- 住宅小区地源热泵空调系统设计施工CAD大样图
- 带热回收的地源热泵机房CAD施工图纸
- 空调节能设计及热回收装置与措施
- 工业工厂及配套设施空调系统设计CAD施工图纸(地源热泵系统)
- 10157平米地源热泵空调系统施工CAD大样图
- 地源热泵 冰蓄冷系统 吸附式空调系统设计CAD图纸
- 水源热泵带热回收整套空调CAD施工图纸
全部评论
评论网友评论仅友表达个人看法,并不表明本站同意其观点,不得发布违反法律法规的内容!
