豆豆网

 找回密码
 立即注册

QQ登录

只需一步,快速开始

查看: 2694|回复: 0

大学体育馆空调暖通空调系统设计CAD施工图纸(大院设计地源热泵)

[复制链接]

0

主题

0

帖子

1085

积分

超级版主

Rank: 8Rank: 8

积分
1085
发表于 2020-2-28 20:49:12 | 显示全部楼层 |阅读模式

该帖子包含附件可供参考学习和下载,您可以 搜索 更多您想要的资源


  • 附件设计说明:有
  • 建筑类别:体育
  • 建筑高度类型:多层建筑
  • 建筑设计面积:13730平方米
  • 建筑地上层数:3层
  • 建筑地下层数:1层
  • 图纸设计深度:施工图
  • 参考图纸:32张
  • 设计年代:近代
  • 设计内容:空调,通风,防排烟,冷热源
  • 冷热源:水地源热泵
  • 水系统:双管制,同程式
  • 送风方式:侧面送风,喷口送风,旋流风口送风
  • 项目所在地:天津

附件详情

  • 设计施工说明
  • 图例
  • 主要设备表
  • 空调通风平面图
  • 剖面图
  • 设备平面图
  • 管道平面图
  • 机房详图
  • 管线详图
  • 冷热源水系统流程图
  • 防排烟原理图
  • ......

附件详情

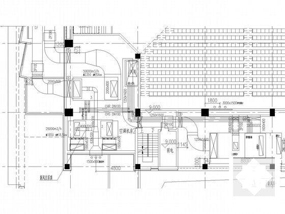
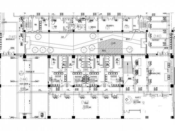
一、项目概要
该工程位于天津市,体育建筑,建筑面积共计13730平方米,地上3层,地下一层,建筑高度为21.3m。
二、冷热源
冷热源采用地源热泵系统
三、空调系统
1、风系统:一层比赛大厅、二层休息厅、球类训练场采用全空气低速送风系统。二层休息厅东西两侧采用侧送风口,北侧采用自力式温控型变流态旋流风口。
2、水系统:空调系统水采用二管制局部同程系统。
四、 通风防排烟
1、比赛大厅设机械排风,竖向排至屋顶。
2、各层卫生间设机械排风,竖向排至屋顶或水平至外墙排放。
3、长度超20m的内走道设机械排烟。
......

图纸共计32张。

空调水管平面图拆分图

空调通风平面图拆分图

空调通风平面图拆分图

空调机房平面图

机房部分剖面图

冷热源流程图

水系统流程图

空调水系统平面图

体育馆暖通空调设计 - 1
第 1 张图
体育馆暖通空调设计 - 2
第 2 张图
体育馆暖通空调设计 - 3
第 3 张图
体育馆暖通空调设计 - 4
第 4 张图
体育馆暖通空调设计 - 5
第 5 张图
体育馆暖通空调设计 - 6
第 6 张图
体育馆暖通空调设计 - 7
第 7 张图
以上是部分图纸截图,有些图框没有放大后再截图,可能截图里不清晰或者看不到内容,您可以在下载后查看具体内容

温馨提示:该资料由网友于2020-2-28 20:49:12上传分享,您可以下载该资料进行学习和参考,如有侵权内容或者违法行为,请及时联系站长删除,如有疑问,您可以在暖通空调专区发帖交流相关知识。

附件2099v11ede2dcsw2sdfc22c2sc.rar

7.25 MB

下载  售价: 100 积分    赚积分

体育馆暖通空调设计相关帖子

回复

使用道具 举报

您需要登录后才可以回帖 登录 | 立即注册

本版积分规则

QQ|联系我们|豆豆网 ( 苏ICP备20004746号-1 )

GMT+8, 2025-12-27 00:57 , Processed in 0.015049 second(s), 27 queries .

本站所有内容均由网友自主分享,如有侵权内容或者违法行为,请及时联系站长删除,本站将根据实际情况进行积分奖励!请查看:免责声明

快速回复 返回顶部 返回列表