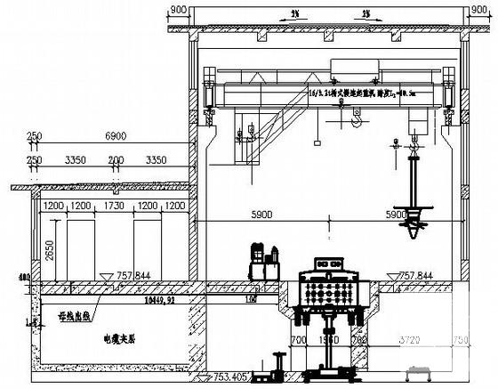
水电站全套电气施工CAD图纸
- 发布时间:2021-04-28
- 评论次数:0
- 浏览次数:0
- 文件大小:1.55 MB
- 收藏次数:0
- 
								文件名称: 附件-995856877079605087557.rar 附件-995856877079605087557.rar
								水电站电气图纸下载
							
						- 水电站初步设计全套图纸.
- 水电站全套监控系统原理CAD图纸
- 某水电站全套施工方案.doc
- 大峡水电站电气主接线CAD图纸(dwg)
- 小型水电站电气CAD图纸(dwg)
- 水电站电气主接线CAD图纸
- 水电站电气主接线图纸(工程).
- 水电站全套CAD图纸(施工进度表)(dwg)
- 水电站全套设计CAD图纸(施工进度表).dwg
- 水电站厂房(主、付)全套结构CAD施工图纸(独立基础).dwg
- 卧式贯流机组800kw水电站厂房全套施工CAD图纸
- 小型水电站空调通风系统全套设计施工CAD图纸
- 中学球馆全套电气施工图纸.
- 车间全套电气施工图纸.
- 小型医院电气全套施工CAD图纸
- 学员宿舍电气施工CAD图纸全套
- YITIA中心电气CAD施工图纸(全套图纸).dwg
- 一份水电站全套监控系统原理CAD图纸(dwg)
- 水电站厂房毕业设计方案全套图纸()
- [CAD]水电站全套招标设计图纸(生活区).dwg
全部评论
						
							评论网友评论仅友表达个人看法,并不表明本站同意其观点,不得发布违反法律法规的内容!
						
						
 
	              	 
	              	 
	              	