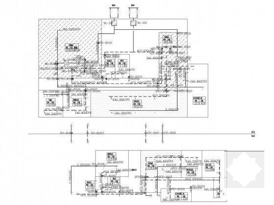
大型地铁站建筑空调通风及防排烟系统设计施工CAD大样图
- 发布时间:2021-05-14
- 评论次数:0
- 浏览次数:0
- 文件大小:11.62 MB
- 收藏次数:0
-
文件名称:
附件-996095977879957878.rar
建筑防排烟系统设计下载
- 建筑防排烟系统设计标准解读.pdf
- [分享]酒店防排烟系统设计格式图纸(风机)
- 防烟排烟系统.pdf
- 防排烟系统验收资料合集
- 多层商业建筑空调通风及防排烟系统设计CAD施工图纸(dwg)
- 多层教育建筑通风防排烟系统设计CAD施工图纸(dwg)
- 办公楼建筑通风防排烟系统设计施工图纸.
- 19层医疗建筑空调通风及防排烟系统设计施工CAD图纸
- 多层民用建筑通风防排烟系统设计施工CAD图纸
- 高层商住建筑空调通风防排烟系统设计施工CAD图纸
- 学校园区建筑空调通风防排烟系统设计施工CAD图纸
- 高层住宅建筑通风防排烟系统设计CAD施工大样图
- 高层住宅建筑防排烟系统设计施工CAD图纸
- 高层住宅建筑通风防排烟系统设计施工CAD图纸
- 34层住宅小区建筑通风及防排烟系统设计施工CAD图纸
- 商业广场建筑防排烟系统设计施工CAD大样图
- 多层商业建筑空调通风及防排烟系统设计施工CAD图纸
- 高层办公建筑通风防排烟系统设计施工CAD图纸
- 超高层商业建筑空调通风及防排烟系统设计施工CAD图纸
- 高层住宅建筑通风防排烟系统设计施工CAD大样图
全部评论
评论网友评论仅友表达个人看法,并不表明本站同意其观点,不得发布违反法律法规的内容!
