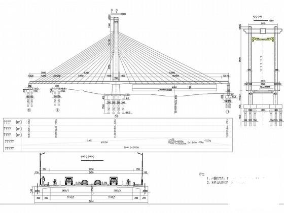
跨运河独塔双索面斜拉桥CAD大样图131张
- 发布时间:2021-05-15
- 评论次数:0
- 浏览次数:0
- 文件大小:10.77 MB
- 收藏次数:0
-
文件名称:
附件-996009587899075989.rar
独塔斜拉桥下载
- 独塔双索面斜拉桥施工方案.doc
- 城市双跨拱形独塔双索面斜拉桥CAD施工大样图.dwg
- 独塔双索面混合梁斜拉桥斜拉索安装施工方案.doc
- 独塔双索面斜拉桥主墩桩基施工方案(36页)
- 独塔双索面600m斜拉桥设计说明.doc
- 预应力混凝土双索面独塔斜拉桥设计计算书.doc,布置图
- 独塔双索面斜拉桥施工组织设计.doc
- 独塔双索面斜拉桥钢板桩围堰施工方案,布置图
- 独塔双索面斜拉桥设计图纸254张2021年PDF.pdf
- 独塔双索面斜拉桥施工组织设计Word.doc
- 一份主跨110m双跨独斜拱塔双索面斜拉桥施工图(83页图纸)(cad设计图)
- 主跨110m双跨独斜拱塔双索面斜拉桥施工图(83张设计美观),构造图,布置图
- 塔梁固结形式_快速路工程标段独塔双索面斜拉桥设计图纸
- 城市主干道人形独塔双索面斜拉桥桩基平面CAD图纸(dwg)
- 双索面独塔斜拉桥设计计算书PDF+59p.pdf,布置图
- 市政双塔双索面斜拉桥总体、基础、索塔全套设计图纸集(一).
- 双塔双索面斜拉桥塔梁索同步施工工法.pdf
- 独塔中央索面斜拉桥设计节点图纸cad构造图
- 独塔中央索面斜拉桥设计节点图纸cad构造图
- 独塔单索面斜拉桥实施性施工组织设计.doc,构造图
全部评论
评论网友评论仅友表达个人看法,并不表明本站同意其观点,不得发布违反法律法规的内容!
