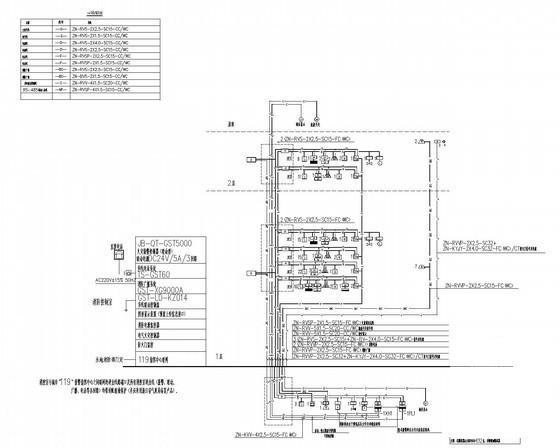
市中心小型菜市场强弱电施工CAD图纸
- 发布时间:2021-04-29
- 评论次数:0
- 浏览次数:0
- 文件大小:3.94 MB
- 收藏次数:0
-
文件名称:
附件-995857957890565759770.rar
菜市场图纸下载
- 2层小型综合体育馆强弱电系统施工CAD图纸
- 菜市场钢结构施工CAD图纸
- 一份2层小型综合体育馆强弱电系统CAD施工图纸
- 城市中心公园景观规划施工CAD图纸
- 小型泵站施工CAD图纸
- 钢结构菜市场农贸大棚结构CAD施工图纸
- 一份菜市场3层办公综全楼建筑施工CAD图纸
- 一份钢结构菜市场农贸大棚结构CAD施工图纸
- 一份菜市场管桁架CAD施工方案图纸(单层建筑)
- 3层菜市场空调通风CAD施工图纸(全空气系统)(dwg)
- 黎明菜市场改造工程采暖设计CAD施工图纸.dwg
- 菜市场泵房水池结构设计CAD施工图纸(8度抗震)
- 菜市场采暖空调通风系统设计CAD施工图纸
- 小区菜市场工程空调设计CAD施工图纸
- 2层新菜市场修改建筑施工图纸cad剖面图
- 泡菜冰箱“腌制”美好生活(菜市场)
- 小型住宅建筑CAD施工图纸
- 小型喷泉CAD施工图纸(dwg)
- 小型渡槽施工CAD图纸(dwg)
- 小型电站CAD施工图纸(dwg)
全部评论
评论网友评论仅友表达个人看法,并不表明本站同意其观点,不得发布违反法律法规的内容!
