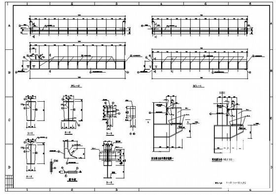
18米跨多跨单层门式刚架厂房结构设计CAD施工大样图
- 发布时间:2021-05-03
- 评论次数:0
- 浏览次数:0
- 文件大小:1.19 MB
- 收藏次数:0
- 
								文件名称: 附件-995878878585908678988.rar 附件-995878878585908678988.rar
								单层门式刚架厂房图下载
							
						- 单层钢结构门式刚架厂房(21米跨)
- 单层门式刚架钢结构厂房转换图_CAD
- 门式刚架结构单层厂房建筑施工CAD图纸
- [CAD图]单层门式刚架厂房结构设计说明(dwg)
- 单层门式刚架厂房结构设计CAD施工图和详图
- 单层门式刚架结构厂房结构施工方案大样图CAD
- 单层门式刚架结构工业厂房全套CAD施工大样图2016
- [民用建筑设计]单层门式刚架厂房结构CAD施工图纸(2014)
- 一份单层门式刚架结构厂房结构CAD施工图纸
- 一份单层门式刚架钢结构厂房结构CAD施工图纸
- 一份单层门式刚架结构车间厂房结构CAD施工图纸
- 一份单层轻型门式刚架结构车间厂房结构CAD施工图纸
- 一份单层门式刚架结构车间厂房结构CAD施工图纸
- 一份单层轻钢门式刚架结构厂房结构CAD施工图纸
- 一份单层门式刚架结构厂房结构CAD施工图纸
- 一份单层门式刚架结构工业厂房结构CAD施工图纸
- [CAD]单层门式刚架厂房加固结构图纸(7度抗震)
- 一份12米跨钢结构单层门式刚架结构厂房CAD图纸
- [CAD]5万吨细碎单层厂房建筑扩初图纸(门式刚架结构)
- [CAD]单层门式刚架结构厂房结构图纸(柱下独立基础)
全部评论
						
							评论网友评论仅友表达个人看法,并不表明本站同意其观点,不得发布违反法律法规的内容!
						
						
 
	              	 
	              	 
	              	