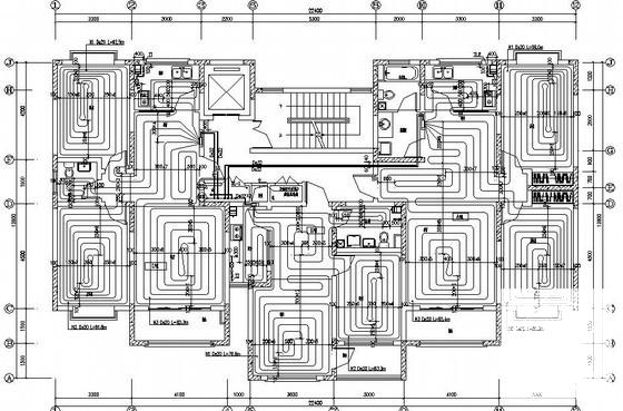
商住小区地上11层住宅楼采暖CAD施工图纸
- 发布时间:2021-05-04
- 评论次数:0
- 浏览次数:0
- 文件大小:1.03 MB
- 收藏次数:0
-
文件名称:
附件-995858678685768887557.rar
小区住宅施工图下载
- 6500平米小区地上18层住宅楼采暖施工CAD图纸
- 2320平米小区地上4层住宅楼采暖CAD施工图纸
- 小区地上13层住宅楼采暖CAD图纸(设计说明)
- 小区住宅楼采暖CAD施工图纸
- 小区多层住宅楼采暖施工CAD图纸
- 小区住宅楼采暖施工CAD图纸
- 小区地上6层住宅楼采暖CAD图纸(总共43张)(设计师)(dwg)
- 地上6层住宅楼集中供热分户计量采暖设计cad图纸_小区热交换站
- 22590平米地上18层商住楼采暖CAD图纸
- 38000平米小区地上24层采暖通风CAD施工图纸
- 442平米小区地上两层别墅采暖空调CAD施工图纸
- 7043平米小区地上11层采暖CAD施工图纸
- 14635平米小区地上10层建筑采暖CAD施工图纸
- 小区住宅楼采暖CAD图纸(设计说明)
- 北方15054平米地上18层住宅楼采暖设计CAD施工图纸
- 一份18层高层商住小区采暖通风CAD施工图纸
- 15056平米小区25层商住楼采暖通风CAD施工图纸
- 19714平米地上23层商住楼采暖设计_CAD
- [CAD]地上6层住宅楼采暖图纸(设计说明)
- 地上8层住宅楼采暖CAD图纸(设计说明)
全部评论
评论网友评论仅友表达个人看法,并不表明本站同意其观点,不得发布违反法律法规的内容!
