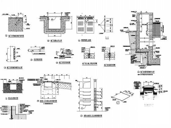
303位大型框剪结构地下停车库建筑结构施工CAD图纸
- 发布时间:2021-05-07
- 评论次数:0
- 浏览次数:0
- 文件大小:2.45 MB
- 收藏次数:0
- 
								文件名称: 附件-995887760697755697668.rar 附件-995887760697755697668.rar
								大型地下车库施工下载
							
						- 442个车位地下1层框剪结构地下室建筑结构施工CAD大样图
- 6层框剪结构商务楼建筑结构CAD施工图纸
- 一份大型地下停车库CAD施工图纸(无梁楼盖)
- 11层框剪结构大型医院结构施工CAD图纸
- 框剪综合楼建筑结构CAD图纸(梁平法施工图)
- 高层框剪结构住宅楼地下车库工程结构CAD施工图纸
- 框剪结构地下室结构CAD施工图纸(dwg)
- 地下1层框剪结构车库结构CAD施工图纸(dwg)(丙级桩基础)
- 12层地下2层框剪结构大厦结构设计施工CAD图纸
- 框剪结构高层地下室结构设计施工CAD图纸
- 框剪结构1层地下室、车库结构施工CAD图纸
- 18层框剪结构商住楼结构施工CAD图纸(地下1层)
- 33层框剪结构商住楼结构施工CAD图纸(地下1层)
- 地下1层框剪结构车库结构设计施工CAD图纸
- 一份高层框剪结构地下室CAD施工图纸(dwg格式)
- 高层框剪地下车库结构设计方案CAD施工图纸
- 11层框剪结构全套CAD施工图纸(带地下室)(dwg)
- 地下室框剪结构施工CAD图纸(独立基础,共9张)
- 两层框剪地下车库结构设计CAD施工图纸
- [CAD]单层框剪结构地下车库建筑及结构图纸(15000平)
全部评论
						
							评论网友评论仅友表达个人看法,并不表明本站同意其观点,不得发布违反法律法规的内容!
						
						
 
	              	 
	              	 
	              	 
	              	 
	              	