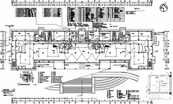
12层办公楼消防电气CAD施工图纸
- 发布时间:2021-05-09
- 评论次数:0
- 浏览次数:0
- 文件大小:1.62 MB
- 收藏次数:0
-
文件名称:
附件-995856676055566778987.rar
办公楼电气施工图下载
- [CAD]办公楼电气图纸(强、弱、消防)
- 一份16层办公楼消防系统改造CAD施工图纸(消防给水、电气、通风...
- 高层办公楼消防系统改造CAD施工图纸(消防给水、电气、通风、智能应急)(dwg)
- 10层科研办公楼电气CAD施工图纸(消防联动控制系统)
- 8层财务办公楼消防电气CAD施工图纸
- 两层办公楼电气CAD施工图纸(消防联动系统)
- 办公楼消防装修电气CAD施工图纸(dwg)
- [CAD]办公楼消防装修电气设计施工图纸.dwg
- 下商场消防CAD图纸(电气施工)
- 高层消防电气施工图纸.
- [CAD]卫生局办公楼电气图纸(消防报警系统)
- 消防中队3层办公楼装修电气CAD图纸(二级负荷)
- 消防中队3层办公楼电气装修CAD图纸
- 6层办公楼电气消防CAD图纸(火灾自动报警系统)
- 办公楼电气消防系统CAD图纸(dwg)
- 消防中队3层办公楼装修电气CAD图纸
- 24层办公楼电气消防报警毕业设计方案_CAD图纸
- 办公楼消防报警及照明电气图纸cad平面图及系统图
- 多层消防中队办公楼建筑施工CAD图纸
- 检察院办公楼给排水、消防、电气工程施工组织.doc
全部评论
评论网友评论仅友表达个人看法,并不表明本站同意其观点,不得发布违反法律法规的内容!
