豆豆网

 找回密码
 立即注册

QQ登录

只需一步,快速开始

查看: 1023|回复: 0

双孔箱涵施工图纸(青石栏杆).

[复制链接]

0

主题

0

帖子

1736

积分

超级版主

Rank: 8Rank: 8

积分
1736
发表于 2020-9-27 18:59:02 | 显示全部楼层 |阅读模式

该帖子包含附件可供参考学习和下载,您可以 搜索 更多您想要的资源


  • 位置:湖南
  • 编制时间:近代
  • 跨径大小和多跨总长:13.5m

附件详情

  • 设计总说明2
  • 箱涵平面定位图
  • 箱涵立面图
  • 箱涵断面钢筋构造图
  • 箱涵平面钢筋构造图
  • 箱涵侧牛腿钢筋构造图
  • 箱涵涵洞处理及挡墙压顶构造图2
  • 青石栏杆构造图

附件详情

设计依据:城市桥梁设计规范CJJ11-近代;城市桥梁搞垮设计规范CJJ166-近代;公路桥涵施工技术规范JTG/TF50-近代
概况:箱涵为钢筋混凝土双孔箱涵,总跨径13.5m,净跨6.0M,净高1.5m。箱涵设计安全等级:一级,设计使用年限50年。设计荷载:城-A级,人群荷载4.0KN/M2。箱涵地基处理采用素混凝土桩加固处理,要求处理后容许承载力达到130kpa。箱涵侧板后采用级配碎石铺筑,箱涵采用就地浇筑工艺。涵身混凝土最低强度等级:C40。最大水胶比:0.45。最少胶凝材料用量:320KG/M3。栏杆石料为青石。
……共计8张,

涵洞立面图

箱涵配筋断面图

箱涵涵洞处理及挡墙压顶构造图

青石栏杆构造图

侧墙悬臂梁配筋立面图

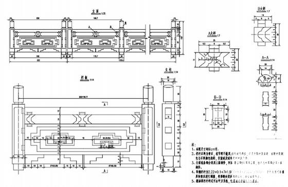
青石栏杆施工图 - 1
第 1 张图
青石栏杆施工图 - 2
第 2 张图
青石栏杆施工图 - 3
第 3 张图
青石栏杆施工图 - 4
第 4 张图
青石栏杆施工图 - 5
第 5 张图
青石栏杆施工图 - 6
第 6 张图
以上是部分图纸截图,有些图框没有放大后再截图,可能截图里不清晰或者看不到内容,您可以在下载后查看具体内容

温馨提示:该资料由网友于2020-9-27 18:59:02上传分享,您可以下载该资料进行学习和参考,如有侵权内容或者违法行为,请及时联系站长删除,如有疑问,您可以在建筑施工专区发帖交流相关知识。

附件2099v11ecwscc2f2ccswcws.rar

1.7 MB

下载  售价: 100 积分    赚积分

青石栏杆施工图相关帖子

回复

使用道具 举报

您需要登录后才可以回帖 登录 | 立即注册

本版积分规则

QQ|联系我们|豆豆网 ( 苏ICP备20004746号-1 )

GMT+8, 2025-12-21 01:09 , Processed in 0.015726 second(s), 27 queries .

本站所有内容均由网友自主分享,如有侵权内容或者违法行为,请及时联系站长删除,本站将根据实际情况进行积分奖励!请查看:免责声明

快速回复 返回顶部 返回列表