豆豆网

 找回密码
 立即注册

QQ登录

只需一步,快速开始

查看: 2041|回复: 0

一份数据中心机房工程建筑电气CAD施工图纸(超详细)

[复制链接]

0

主题

0

帖子

1097

积分

超级版主

Rank: 8Rank: 8

积分
1097
发表于 2020-2-18 12:27:57 | 显示全部楼层 |阅读模式

该帖子包含附件可供参考学习和下载,您可以 搜索 更多您想要的资源


  • 建筑类别:工业建筑
  • 建筑高度类型:多层建筑
  • 建筑设计结构形式:其他结构
  • 图纸设计深度:施工图
  • 参考图纸:47张
  • 设计年代:近代
  • 地下室用途:人防, 商业, 车库, 其它
  • 节点大样:线槽, 防雷接地 , 灯具, 开关按钮, 接线盒, 弱电设备, 其它
  • 负荷等级:三级
  • 防雷等级:第三类
  • 强电设计: 供配电系统 , 低压配电, 电气照明, 建筑物防雷, 接地安全, 其它
  • 弱电设计: 火灾自动报警系统 , 视频监控系统, 出入口控制系统, 建筑设备监控系统, 综合布线系统, 通信系统, 有线电视和卫星接收系统, 广播系统, 信息网络系统, 公共信息显示系统, 智能化集成, 呼应信号及信息显示, 其它

附件详情

  • 1 市电配电柜系统图
  • 2 市电配电柜系统图
  • 3 PDU1输出配电柜系统图
  • 4 环境监控系统图
  • 5 门禁系统设计说明及系统图
  • 6 7层数据中心机房定位图
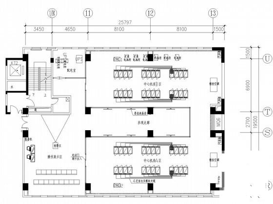
  • 7 数据中心机房设备及装修平面图
  • 8 强电桥架布置图
  • 9 辅助插座配电布置图
  • 10 市电照明配电布置图
  • 11 应急照明配电布置图
  • 12 综合布线设计说明
  • 13 防雷接地设计说明
  • 14 机房等电位布置平面图
  • 15 动力环境监控设计说明
  • 16 视频监控平面布置图
  • 17 门禁平面布置图
  • 18 气体灭火报警系统平面布置图

附件详情

该附件是数据中心机房工程建筑电气施工全套图纸共47张(超详细)。
项目概要:室内层高3.9米,全框架结构。装饰范围:项目范围内的墙顶地装修。
设计范围:市电配电柜系统,UPS输出配电柜系统,PDU1输出配电柜系统,综合布线系统,接地防雷系统,视频监控系统,出入口控制系统,消防系统,配电系统,接地防雷系统,通信系统,网络信息系统,智能化集成,呼应信号及信息显示。
......
编制与,共47张。


机房等电位布置平面图

光缆配线布置图

数据中心机房图

玻璃隔断大样图

气体灭火报警系统平面布置图

市电配电柜系统图

机房建筑电气 - 1
第 1 张图
机房建筑电气 - 2
第 2 张图
机房建筑电气 - 3
第 3 张图
机房建筑电气 - 4
第 4 张图
机房建筑电气 - 5
第 5 张图
机房建筑电气 - 6
第 6 张图
以上是部分图纸截图,有些图框没有放大后再截图,可能截图里不清晰或者看不到内容,您可以在下载后查看具体内容

温馨提示:该资料由网友于2020-2-18 12:27:57上传分享,您可以下载该资料进行学习和参考,如有侵权内容或者违法行为,请及时联系站长删除,如有疑问,您可以在电气工程专区发帖交流相关知识。

附件2099v11edee1fd0cs1dsc11c00.rar

1.29 MB

售价: 100 积分    赚积分

机房建筑电气相关帖子

回复

使用道具 举报

您需要登录后才可以回帖 登录 | 立即注册

本版积分规则

QQ|联系我们|豆豆网 ( 苏ICP备20004746号-1 )

GMT+8, 2025-12-31 13:00 , Processed in 0.017166 second(s), 27 queries .

本站所有内容均由网友自主分享,如有侵权内容或者违法行为,请及时联系站长删除,本站将根据实际情况进行积分奖励!请查看:免责声明

快速回复 返回顶部 返回列表