豆豆网

 找回密码
 立即注册

QQ登录

只需一步,快速开始

查看: 2520|回复: 0

一份4层商业建筑给排水CAD施工图纸

[复制链接]

0

主题

0

帖子

1085

积分

超级版主

Rank: 8Rank: 8

积分
1085
发表于 2020-2-18 13:53:38 | 显示全部楼层 |阅读模式

该帖子包含附件可供参考学习和下载,您可以 搜索 更多您想要的资源


  • 附件设计说明:有
  • 建筑类别:商业
  • 建筑高度类型:多层建筑
  • 建筑设计结构形式:钢筋混凝土结构
  • 建筑设计面积:72226平方米
  • 建筑地上层数:4层
  • 建筑地下层数:2层
  • 图纸设计深度:施工图
  • 参考图纸:19张
  • 设计年代:近代
  • 地下室用途:商业, 车库
  • 生活供水设计:生活给水系统
  • 排水设计:污水系统, 废水系统
  • 消防设计:室外消火栓系统, 室内消火栓系统, 喷淋系统
  • 供水方式:市政供水
  • 排水体制:污废合流
  • 排水技术:重力排水
  • 消火栓用水量室外(L/S):30
  • 消火栓用水量室内(L/S):15
  • 项目所在地:河北

附件详情

  • 资料目录
  • 给排水设计说明
  • 地下给排水、消防平面图
  • 给排水、消防出入户平面图
  • 机房层给排水、消防平面图
  • 屋面雨水排水系统图
  • 卫生间大样图
  • 给水系统图
  • 排水系统图

附件详情

本项目总建筑设计面积:72226平米,建筑高度19.72米,该建筑为地上4层、地下2层的综合体,地上为商业用房,地下一层为商业用房,地下二层为设备用房、车库。建筑类别为二类公共建筑;设计合理使用年限为50年。
,图纸共19张。

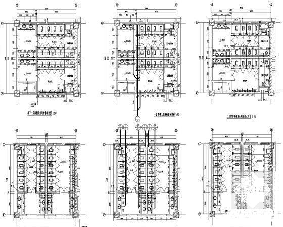
三层给排水、消防平面图

屋面雨水排水平面图

卫生间大样图

雨水原理图

排水系统图

第 1 张图
第 1 张图
第 2 张图
第 2 张图
第 3 张图
第 3 张图
第 4 张图
第 4 张图
第 5 张图
第 5 张图
第 6 张图
第 6 张图
以上是部分图纸截图,有些图框没有放大后再截图,可能截图里不清晰或者看不到内容,您可以在下载后查看具体内容

温馨提示:该资料由网友于2020-2-18 13:53:38上传分享,您可以下载该资料进行学习和参考,如有侵权内容或者违法行为,请及时联系站长删除,如有疑问,您可以在给水排水专区发帖交流相关知识。

附件2099v11edc0dcdf0ww1dcfd1c0.rar

2.79 MB

下载  售价: 100 积分    赚积分

相关帖子

回复

使用道具 举报

您需要登录后才可以回帖 登录 | 立即注册

本版积分规则

QQ|联系我们|豆豆网 ( 苏ICP备20004746号-1 )

GMT+8, 2025-12-28 23:34 , Processed in 0.014503 second(s), 27 queries .

本站所有内容均由网友自主分享,如有侵权内容或者违法行为,请及时联系站长删除,本站将根据实际情况进行积分奖励!请查看:免责声明

快速回复 返回顶部 返回列表