豆豆网

 找回密码
 立即注册

QQ登录

只需一步,快速开始

查看: 2957|回复: 0

客运站建筑给排水施工图cad重力流雨水系统

[复制链接]

0

主题

0

帖子

1579

积分

超级版主

Rank: 8Rank: 8

积分
1579
发表于 2020-2-18 19:55:23 | 显示全部楼层 |阅读模式

该帖子包含附件可供参考学习和下载,您可以 搜索 更多您想要的资源


  • 附件设计说明:有
  • 建筑类别:交通建筑
  • 建筑高度类型:单层建筑
  • 建筑设计结构形式:其他结构
  • 建筑地上层数:1层
  • 图纸设计深度:施工图
  • 参考图纸:7张
  • 设计年代:近代
  • 生活供水设计:生活给水系统
  • 排水设计:污水系统,废水系统,雨水系统
  • 消防设计:室外消火栓系统,室内消火栓系统,灭火器配置系统
  • 供水方式:市政供水
  • 供水分区:无
  • 排水体制:污废合流,雨污分流
  • 排水技术:重力排水
  • 火灾危险等级:中危险级Ⅰ级,仓库危险级Ⅰ级
  • 消火栓用水量室外(L/S):20
  • 消火栓用水量室内(L/S):20
  • 特殊系统:气体消防
  • 大样节点:水泵,泵房,气体灭火
  • 项目所在地:湖北

附件详情

  • 设计说明 图例
  • 施工说明
  • 气体消防设计说明
  • 生活给水、排水、重力流雨水系统原理图
  • 室内、室外消火栓给水系统原理图
  • 气体 消防系统 原理图
  • 水泵房平面
  • 水泵房剖面
  • 站房屋面平面图
  • 站台雨棚虹吸雨水平面图
  • 卫生间大样

附件详情

该项目位于湖北,是一客运站建筑给排水设计
设计范围:该项目设计范围主要包括站房室内外给排水系统、站房屋面雨水系统、室内消防
给水系统、气体灭火系统、建筑灭火器配置设计。
,共计7张图纸;

剖面图

水泵房大样

给水系统原理图

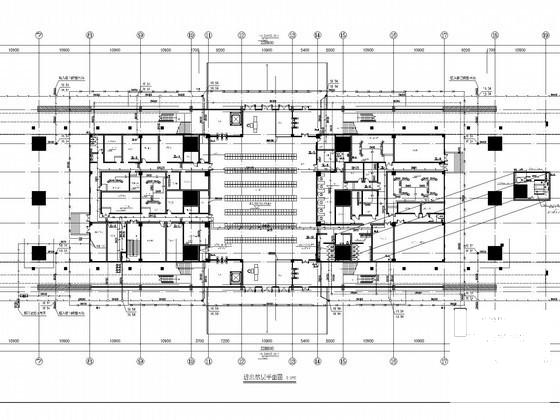
重力流雨水系统 - 1
第 1 张图
重力流雨水系统 - 2
第 2 张图
重力流雨水系统 - 3
第 3 张图
重力流雨水系统 - 4
第 4 张图
以上是部分图纸截图,有些图框没有放大后再截图,可能截图里不清晰或者看不到内容,您可以在下载后查看具体内容

温馨提示:该资料由网友于2020-2-18 19:55:23上传分享,您可以下载该资料进行学习和参考,如有侵权内容或者违法行为,请及时联系站长删除,如有疑问,您可以在给水排水专区发帖交流相关知识。

附件2099v11edc0ssedecewde22sd1.rar

1.26 MB

下载  售价: 100 积分    赚积分

重力流雨水系统相关帖子

回复

使用道具 举报

您需要登录后才可以回帖 登录 | 立即注册

本版积分规则

QQ|联系我们|豆豆网 ( 苏ICP备20004746号-1 )

GMT+8, 2025-12-27 19:44 , Processed in 0.017341 second(s), 27 queries .

本站所有内容均由网友自主分享,如有侵权内容或者违法行为,请及时联系站长删除,本站将根据实际情况进行积分奖励!请查看:免责声明

快速回复 返回顶部 返回列表