| 
 该帖子包含附件可供参考学习和下载,您可以 搜索 更多您想要的资源   
 
  - 
   附件设计说明:有
  
 
  - 
   建筑类别:住宅
  
 
  - 
   建筑高度类型:多层建筑
  
 
  - 
   建筑设计结构形式:钢筋混凝土结构
  
 
  - 
   建筑设计面积:10000平方米
  
 
  - 
   建筑地上层数:3层
  
 
  - 
   图纸设计深度:施工图
  
 
  - 
   参考图纸:55张
  
 
  - 
   设计年代:近代
  
 
  - 
   生活供水设计:生活给水系统
  
 
  - 
   排水设计:污水系统,废水系统,雨水系统
  
 
  - 
   消防设计:室外消火栓系统,室内消火栓系统
  
 
  - 
   供水方式:市政供水
  
 
  - 
   供水分区:无
  
 
  - 
   排水体制:污废合流,雨污分流
  
 
  - 
   排水技术:重力排水
  
 
  - 
   火灾危险等级:轻危险级
  
 
  - 
   消火栓用水量室外(L/S):30
  
 
  - 
   消火栓用水量室内(L/S):15
  
 
  - 
   大样节点:卫生间
  
 
  - 
   项目所在地:河北
  
 
  
 
  
   附件详情
   
  
   - 
    资料目录
   
 
   - 
    设计说明
   
 
   - 
    一层给排水平面图
   
 
   - 
    夹层给排水平面图
   
 
   - 
    二层给排水平面图
   
 
   - 
    三层给排水平面图
   
 
   - 
    设备层给排水平面图
   
 
   - 
    屋顶给排水平面图
   
 
   - 
    生活给水系统原理图
   
 
   - 
    污废水系统原理图
   
 
   - 
    消火栓给水系统原理图
   
 
   - 
    雨水系统原理图
   
 
   - 
    卫生间大样图
   
 
   
  
 
  
   附件详情
   
  
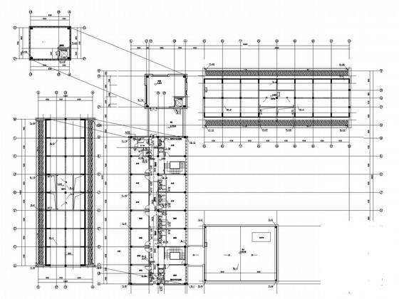
   该项目位于河北,共有8栋建筑,总建筑面积约10000平米,建筑地上3F,建筑高度14.05m,建筑耐火等级为地上二级;
    
   该项目设计内容包括:给水系统,排水系统,雨水系统,灭火器设置,消火栓系统。
    
   ,共计55张图纸;
    
    
   
  
   
  
   
    一层给排水平面图
    
   
    卫生间大样图
    
   
    污废水系统原理图
    
   
    雨水系统原理图
    
   
  
 
第 1 张图   
第 2 张图   
第 3 张图   
第 4 张图   
第 5 张图   以上是部分图纸截图,有些图框没有放大后再截图,可能截图里不清晰或者看不到内容,您可以在下载后查看具体内容 
 
 温馨提示:该资料由网友于2020-2-18 20:19:33上传分享,您可以下载该资料进行学习和参考,如有侵权内容或者违法行为,请及时联系站长删除,如有疑问,您可以在给水排水专区发帖交流相关知识。
 
	
 |